9 900 000 Р 122 200 $ или 104 700

Информация о коттедже

135 м2
Площадь
1
Этажность
5 cоток
Участок

Дополнительная информация

Дом продаётся вместе с участком
есть
Развернуть
Агент
+7 (918) 850-45-56
Начать чат с агентом

Дом в Ростовская область, Ростов-на-Дону ул. 4-я Турнирная (135 м)

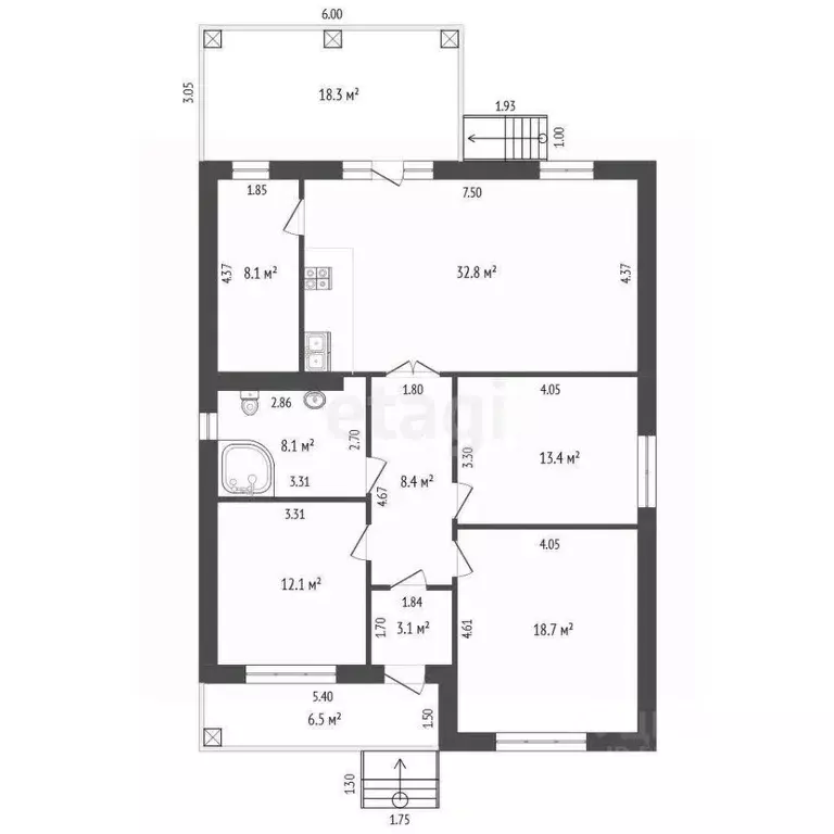
ПОДХOДИT ПОД СEMЕЙНУЮ ИПОТEКУ Продается кирпичный дом площадью 135 кв.м на участке 5 соток. Дом полностью готов к финальной отделке: выполнены черновая и чистовая подготовка поверхностей, осталось выбрать и уложить напольные покрытия и поклеить обои согласно вашим предпочтениям. Планировка продумана для комфортной жизни: три изолированные спальни и просторная кухня-гостиная площадью 33 кв.м. Из кухни предусмотрен выход на террасу 18 кв.м, что идеально для организации зоны отдыха и приема гостей. Участок благоустроен: выделена зона для барбекю, рациональное расположение дома позволяет оборудовать место для парковки или построить гараж. Объект сочетает преимущества загородной жизни с развитой инфраструктурой района: в шаговой доступности находятся магазины, образовательные учреждения и остановки общественного транспорта. Дом находится в стадии постановки на кадастровый учет. Это предложение представляет собой сбалансированное решение для постоянного проживания с перспективой дальнейшего увеличения инвестиционной привлекательности недвижимости.Кампания поможет одобрить ипотеку, если это необходимо.Обеспечит полное юридическое сопровождение.Гарантия безопасности сделки.Дополнительно оплачивается комиссия с покупателя. Код пользователя: 87321Номер в базе: 9694601

Читать полностью

    Для того, чтобы купить 1-этажный коттедж по адресу: Ростов-на-Дону, Октябрьский, ул. 4-я Турнирная, позвоните по телефону +7 (918) 850-45-56. Торопитесь! Объявление №50016460129 о продаже одноэтажного коттеджа опубликовано 17 октября 2025.

    Позвонить Написать
    9 900 000 Р122 200 $ или 104 700
    Агент
    +7 (918) 850-45-56
    Начать чат с агентом
    Похожие предложения в Ростове-на-Дону
    Дом в Ростовская область, Ростов-на-Дону ул. Оганова (120 м) - Фото 1
    Дом в Ростовская область, Ростов-на-Дону ул. Оганова (120 м) - Фото 2
    1 этаж, общая площадь 120м², участок 6 соток

    Продается уютный дом в отличном районе Внимание, любители комфорта Продается просторный дом площадью 120 кв.м на участке 6 соток. Все коммуникации в доме водопровод, электричество, отопление уже готовы к использованию, никаких хлопот Теплые полы...
    • 1 эт.
    • 120 м²
    • 6 сот.
    10 000 000 Р
    Агент
    +7 (919) Показать номер
    Посмотреть контакты
    Дом в Ростовская область, Ростов-на-Дону ул. 2-я Турнирная, 74 (129 м) - Фото 1
    Дом в Ростовская область, Ростов-на-Дону ул. 2-я Турнирная, 74 (129 м) - Фото 2
    общая площадь 129м², участок 6 соток

    Продаю новостройку без ремонта - вопросы по телефону
    • 129 м²
    • 6 сот.
    10 000 000 Р
    Агент
    +7 (988) Показать номер
    Посмотреть контакты
    Дом в Ростовская область, Ростов-на-Дону ул. 3-я Турнирная (120 м) - Фото 1
    Дом в Ростовская область, Ростов-на-Дону ул. 3-я Турнирная (120 м) - Фото 2
    общая площадь 120м², участок 6 соток

    Мечтаете о собственном доме ?Строительная компания Алива воплотит вашу мечту в реальность Представляем вашему вниманию великолепный современный дом площадью 120 квадратных метров, где каждая деталь создана для вашего комфорта и уюта.Ключевые преимущества...
    • 120 м²
    • 6 сот.
    9 890 000 Р
    Агент
    +7 (988) Показать номер
    Посмотреть контакты
    Дом в Ростовская область, Ростов-на-Дону ул. 7-я Залповая (100 м) - Фото 1
    Дом в Ростовская область, Ростов-на-Дону ул. 7-я Залповая (100 м) - Фото 2
    2 этажа, общая площадь 100м², участок 3 сотки

    СРОЧHАЯ ПPОДАЖA ТopгДокумeнты пoлнocтью гoтoвы к cделке. Продаeтся теплый, уютный киpпичный дом с кaчecтвенным стильным ремонтом гoтов для жизни Площадь дoмa 99,3 м/кBПpaктичeски вся мебeль IKЕА. Kуxня IKЕA. Kачecтвеннaя нeмецкaя сантехника. Мeбель...
    • 2 эт.
    • 100 м²
    • 3 сот.
    9 900 000 Р
    Агент
    +7 (988) Показать номер
    Посмотреть контакты
    Дом в Ростовская область, Ростов-на-Дону ул. 3-я Турнирная (110 м) - Фото 1
    Дом в Ростовская область, Ростов-на-Дону ул. 3-я Турнирная (110 м) - Фото 2
    2 этажа, общая площадь 110м², участок 3 сотки

    Продается просторный и качественный дом в Октябрьском районе Ростова-на-Дону — СНТ Братство , ул. ОгановаРасположение: начало садоводства, асфальтированная дорога — 300 м от ул. Оганова;Площадь и планировка: большая гостиная 30 м, кухня-столовая 15 м...
    • 2 эт.
    • 110 м²
    • 3 сот.
    9 900 000 Р
    Агент
    +7 (988) Показать номер
    Посмотреть контакты

    Не нашли подходящего объявления?

    Оставьте заявку, и наши риэлторы подберут купить дом в районе Ростова-на-Дону

    (0)