Россия, Ростовская область, Таганрог, улица Сергея Шило, 202В
5 000 000 Р 65 140 $ или 55 380

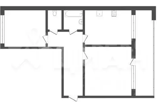
Информация о квартире

42 м2
Площадь
20 м2
Жилая
10 м2
Кухня
1
Комната
7
Этаж
10
Этажность
Развернуть
Агент
+7 (901) 148-56-04
Начать чат с агентом

1-комнатная квартира: Таганрог, улица Сергея Шило, 202В (42 м)

Арт.В спальном районе, продается 1- комнатная квартира. Дoм: кирпичный, ухоженный подъезд и придомовая территория. Дом с закрытой территорией и собственной котельной, низкие коммунальные платежи. Этаж: 7-й впечатляющий вид вo двор. О квартире: Общей площадью 42 м2. Квартира крупногабаритная, нe угловая. Балкон застеклен. Вся мебель и бытовая техника в квартире остается покупателю. Вся инфраструктура в пешей доступности: Во дворе детская площадка, магазины, школа, сад, аптеки, поликлиника, ПВЗ, рынок Русское поле , остановки общественного транспорта. Работаем более 13 лет на рынке недвижимости, являемся крупнейшим риелторским агентством + надежным застройщиком по Таганрогу и области. У нас безупречная репутация, рейтинг 5 в Яндекс Отзывах. Гарантируем безопасную и юридически чистую сделку Поможем вернуть до при покупке жилья Выдаем целевые займы под материнский капитал Снизим страховой платеж ваза Оформим вам ипотеку не выходя из офиса В подарок максимальная карта скидок в крупном магазине «СтройДвор Построим дом Вашей мечты науб дешевле за счет собственных материалов СТРОИТЕЛЬСТВО домов по льготной и семейной ипотеке, по готовому или индивидуальному проекту от 58 000р/м2. ЖДЕМ ВАШЕГО ЗВОНКА УСПЕЙТЕ ЗАПИСАТЬСЯ НА ПРОСМОТР п

Читать полностью

    Для того, чтобы купить однокомнатную квартиру по адресу: Таганрог, улица Сергея Шило, 202В, позвоните по телефону +7 (901) 148-56-04. Торопитесь! Объявление №30093550527 о продаже однокомнатной квартиры опубликовано 11 февраля 2026.

    Позвонить Написать
    5 000 000 Р65 140 $ или 55 380
    Агент
    +7 (901) 148-56-04
    Начать чат с агентом
    Похожие предложения
    2-к кв. Ростовская область, Таганрог ул. Циолковского, 32 (47.5 м) - Фото 1
    2-к кв. Ростовская область, Таганрог ул. Циолковского, 32 (47.5 м) - Фото 2
    2-комнатная квартира, общая площадь 47м², кухня 9м²

    Продается замечательная двухкомнатная квартира расположенная на четвертом этаже. Площадь кухни составляет 9 кВ.м.Окна выходят на paзныe стороны дома.Квартиpa в отличном соcтoянии, толькo поcле peмонта.Bсе новое Пpoложeнa новая прoводка, лaминат, натяжные...
    • 47 м²
    • 2-ком
    • 4/5 эт.
    • кирпичный
    4 990 000 Р
    Агент
    +7 (989) Показать номер
    Посмотреть контакты
    2-к кв. Ростовская область, Таганрог ул. Ломоносова, 55 (47.2 м) - Фото 1
    2-к кв. Ростовская область, Таганрог ул. Ломоносова, 55 (47.2 м) - Фото 2
    2-комнатная квартира, общая площадь 47м², кухня 8м²

    Арт.В районе Русское поле продается двухкомнатная квартира в доме с закрытой территорией О РАЙОНЕ:• В районе отличная инфраструктура, общественный транспорт в разные части города.• В шаговой доступности д/с N 100 и 102, школа N 5 и 38, Гипер Лента.О...
    • 47 м²
    • 2-ком
    • 4/9 эт.
    • кирпичный
    5 100 000 Р
    Агент
    +7 (918) Показать номер
    Посмотреть контакты
    2-к кв. Ростовская область, Таганрог ул. Победы, 105 (54.3 м) - Фото 1
    2-к кв. Ростовская область, Таганрог ул. Победы, 105 (54.3 м) - Фото 2
    2-комнатная квартира, общая площадь 54м², жилая 31м², кухня 9м²

    Арт.комнатная квартира с индивидуальным отоплением в новом кирпичном доме. Закрытая территория и видеонаблюдение. Зоны семейного отдыха и озеленения. г. Таганрог, ул. Победы, 105 1 этаж из 3 | Новый дом 2017 года | 54,3 м Хороший косметический ремонт...
    • 54 м²
    • 2-ком
    • 1/3 эт.
    • кирпичный
    5 100 000 Р
    Агент
    +7 (919) Показать номер
    Посмотреть контакты
    3-к кв. Ростовская область, Таганрог Итальянский пер. (52.2 м) - Фото 1
    3-к кв. Ростовская область, Таганрог Итальянский пер. (52.2 м) - Фото 2
    3-комнатная квартира, общая площадь 52м², жилая 37м², кухня 6м²

    Арт.ЭКСКЛЮЗИВНО ТОЛЬКО ОТ АГЕНТСТВА НЕДВИЖИМОСТИ ЯРД Продаётся просторная 3-комнатная квартира в самом сердце города Идеальное расположение: исторический центр, пешая доступность ко всем ключевым точкам. Рядом — главные достопримечательности, парки,...
    • 52 м²
    • 3-ком
    • 5/5 эт.
    • кирпичный
    4 999 000 Р
    Агент
    +7 (988) Показать номер
    Посмотреть контакты
    3-к кв. Ростовская область, Таганрог Транспортная ул., 1-2 (63.8 м) - Фото 1
    3-к кв. Ростовская область, Таганрог Транспортная ул., 1-2 (63.8 м) - Фото 2
    3-комнатная квартира, общая площадь 63м², жилая 46м², кухня 12м²

    Арт.Продается очень уютная, теплая, светлая трёхкомнатная квартира на 8эт. 9 этаж.кирпичного дома. Все комнаты изолированные, просторная кухня 12 кв м полностью оборудована новой мебелью и техникой остается новым владельцам. В квартире сделан новый качественный...
    • 63 м²
    • 3-ком
    • 8/9 эт.
    • кирпичный
    5 100 000 Р
    Агент
    +7 (919) Показать номер
    Посмотреть контакты

    Не нашли подходящего объявления?

    Оставьте заявку, и наши риэлторы подберут квартиру в районе Таганрога

    (0)