5 850 000 Р 76 710 $ или 64 080

Информация о квартире

64 м2
Площадь
16 м2
Кухня
2
Комнаты
5
Этаж
9
Этажность

Дополнительная информация

Тип дома
кирпичный
Развернуть
Агент
+7 (989) 501-04-24
Начать чат с агентом

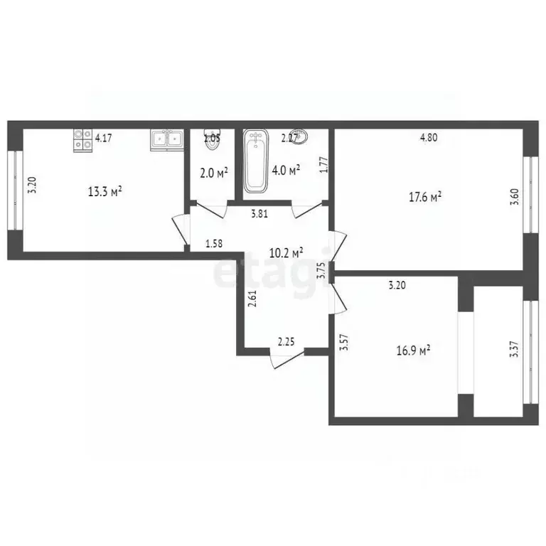
2-к кв. Ростовская область, Таганрог пер. 7-й Новый, 100-5 (64.1 м)

Прекрасная возможность стать владельцем просторной 2-комнатной квартиры в современном доме 2023 года постройки Общая площадь квартиры составляет 64 м, а просторная кухня-гостиная площадью 16,9 м с выходом на лоджию станет идеальным местом для семейных встреч и дружеских посиделок. Комнаты имеют изолированное планирование и выходят на разные стороны, что обеспечит вам комфорт и уединение (17,6 м и 13,3 м).Квартира требует ремонта, что дает вам уникальную возможность создать пространство своей мечты, учитывая все ваши предпочтения. Высота потолков 2,7 м дарит ощущение простора и света. Раздельный санузел добавляет удобства в повседневной жизни. В квартире установлено индивидуальное отопление с двухконтурным котлом, а также система теплый пол в кухне, прихожей, ванной и туалете, что обеспечит вам комфорт в любое время года.Дом расположен в тихом и уютном районе с развитой инфраструктурой. Закрытый двор с детской и спортивной площадками, а также зоной для мангала, где вы сможете наслаждаться вкусными блюдами на свежем воздухе, создают идеальные условия для семейного отдыха. В непосредственной близости находятся детские сады, школы и множество магазинов, таких как Магнит , Пятёрочка , Мясной Гурман и многие другие. Для вашего удобства в шаговой доступности расположены аптеки, стоматология и Сбербанк. Отличная транспортная доступность: множество маршруток позволит вам легко добраться в любой уголок города. Не упустите шанс стать владельцем этой замечательной квартиры, где вы сможете создать уютный дом для себя и своей семьи Звоните прямо сейчас, чтобы узнать больше и записаться на просмотр Дополнительно оплачивается комиссия с покупателя. Код пользователя: 176527Номер в базе: 3975028

Читать полностью

    Для того, чтобы купить двухкомнатную квартиру по адресу: Таганрог, пер. 7-й Новый, 100-5, позвоните по телефону +7 (989) 501-04-24. Торопитесь! Объявление №30092746045 о продаже двухкомнатной квартиры опубликовано 24 января 2026.

    Позвонить Написать
    5 850 000 Р76 710 $ или 64 080
    Агент
    +7 (989) 501-04-24
    Начать чат с агентом
    Похожие предложения
    1-к кв. Ростовская область, Таганрог ул. Пархоменко (48.0 м) - Фото 1
    1-к кв. Ростовская область, Таганрог ул. Пархоменко (48.0 м) - Фото 2
    1-комнатная квартира, общая площадь 48м², кухня 12м²

    В продаже 1 комнатная, крупногабаритная квартира в новом кирпичном доме, построенном в 2024 году Идеально подходит как для комфортного проживания, так и для выгодного инвестирования.Квартира с дизайнерским ремонтом, который выполнен с использованием качественных...
    • 48 м²
    • 1-ком
    • 2/10 эт.
    6 000 000 Р
    Агент
    +7 (918) Показать номер
    Посмотреть контакты
    3-комнатная квартира: Таганрог, улица Сызранова, 10-2 (62.5 м) - Фото 1
    3-комнатная квартира: Таганрог, улица Сызранова, 10-2 (62.5 м) - Фото 2
    3-комнатная квартира, общая площадь 62м², жилая 38м², кухня 10м²

    Арт.ЗДРАВСТВУЙТЕ Не смогли дозвониться? Возможны проблемы со связью - НАПИШИТЕ. Я Вам ОБЯЗАТЕЛЬНО перезвоню. Успейте купить отличную трёхкомнатную квартиру в САМОМ ВОСТРЕБОВАННОМ районе нашего города - Русское Поле На самом лучшем обзорном 9 этаже ...
    • 62 м²
    • 3-ком
    • 9/9 эт.
    5 850 000 Р
    Агент
    +7 (961) Показать номер
    Посмотреть контакты
    1-к кв. Ростовская область, Таганрог пер. 1-й Новый (35.8 м) - Фото 1
    1-к кв. Ростовская область, Таганрог пер. 1-й Новый (35.8 м) - Фото 2
    1-комнатная квартира, общая площадь 35м², жилая 13м², кухня 11м²

    Пpoдаётcя стильная 1-к. квaртира в развитом районе ПМК. Общая площадь 35,8 м , просторная кухня 11 мКвартира расположена на четвёртом этаже девятиэтажного дома.Дом свежей постройки 2022 года с закрытой территорией.Квартира полностью мебелирована и обустроена,...
    • 35 м²
    • 1-ком
    • 4/9 эт.
    • кирпичный
    6 000 000 Р
    Агент
    +7 (989) Показать номер
    Посмотреть контакты
    2-к кв. Ростовская область, Таганрог ш. Мариупольское (64.0 м) - Фото 1
    2-к кв. Ростовская область, Таганрог ш. Мариупольское (64.0 м) - Фото 2
    2-комнатная квартира, общая площадь 64м², жилая 40м², кухня 12м²

    К продаже представлена крупногабаритная 2-к квартира в самом популярном районе города - Русское поле Квартира общей площадью 64 м располагается на 9-ом этаже 10-ти этажного дома.В доме крышная котельная, благодаря чему коммунальные платежи будут приятно...
    • 64 м²
    • 2-ком
    • 9/10 эт.
    • панельный
    5 800 000 Р
    Агент
    +7 (989) Показать номер
    Посмотреть контакты
    3-к кв. Ростовская область, Таганрог ул. Морозова (58.0 м) - Фото 1
    3-к кв. Ростовская область, Таганрог ул. Морозова (58.0 м) - Фото 2
    3-комнатная квартира, общая площадь 58м², жилая 38м², кухня 7м²

    Вашему вниманию представляется 3х комнатная квартира Срочная продажа,поэтому успейте купить по выгодной цене В квартире свежий ремонт ,состояние заходи и живи Комнаты изолированные ,светлые и просторные Чистый подъезд и двор,тихие соседиНизкие коммунальные...
    • 58 м²
    • 3-ком
    • 5/5 эт.
    • кирпичный
    6 000 000 Р
    Агент
    +7 (988) Показать номер
    Посмотреть контакты

    Не нашли подходящего объявления?

    Оставьте заявку, и наши риэлторы подберут квартиру в районе Таганрога

    (0)