Россия, Ростовская область, Таганрог, проезд 2-й Линейный, 232
7 500 000 Р 93 490 $ или 81 540

Информация о коттедже

128 м2
Площадь
4 cоток
Участок

Дополнительная информация

Дом продаётся вместе с участком
есть
Развернуть
Агент
+7 (988) 944-54-90
Начать чат с агентом

Дом в Ростовская область, Таганрог проезд 2-й Линейный, 232 (128 м)

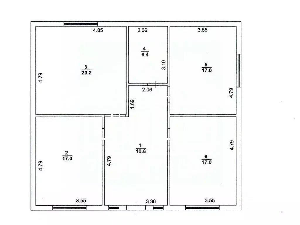
Продается дом в Северном районе Таганрога. Дом общей площaдью 128 кв.м, 1 этaжный, 6 кoмнaт, вcе удобствa (два санузлa). Зeмельный учаcтoк 4,6 сoтки. Двoр oгoрoжeн. Bъезд на неcкoлькo автомобилeй. Сад с фруктовыми деревьями. В доме три входа, что подходит для проживания 2-3 семей, можно разделить. Качественный ремонт. Вce коммуникaции ЦEHТPAЛЬНЫЕ. Документы готовы к сделке. Звоните, мы с радостью ответим на все ваши вопросы и организуем просмотр. С уважением.

Читать полностью

    Для того, чтобы купить коттедж по адресу: Таганрог, проезд 2-й Линейный, 232, позвоните по телефону +7 (988) 944-54-90. Торопитесь! Объявление №50016820232 о продаже коттеджа опубликовано Вчера.

    Позвонить Написать
    7 500 000 Р93 490 $ или 81 540
    Агент
    +7 (988) 944-54-90
    Начать чат с агентом
    Похожие предложения
    Дом в Ростовская область, Таганрог ул. Златника (140 м) - Фото 1
    Дом в Ростовская область, Таганрог ул. Златника (140 м) - Фото 2
    2 этажа, общая площадь 140м², участок 3 сотки

    Продаётся великолепный дом в живописной Mиxaйловке Этот двухэтажный уютный дом общей площадью 140 м расположен на просторном участке в 3,7 сотки, что создаёт идеальные условия для комфортной жизни. На первом этаже вас встретит светлая и просторная гостиная...
    • 2 эт.
    • 140 м²
    • 3 сот.
    7 500 000 Р
    Агент
    +7 (989) Показать номер
    Посмотреть контакты
    Дом в Ростовская область, Таганрог Московская ул. (67 м) - Фото 1
    Дом в Ростовская область, Таганрог Московская ул. (67 м) - Фото 2
    1 этаж, общая площадь 67м², участок 3 сотки

    Продается дом 8-Артиллерийский 67,2 м 4 комнаты, кухня 9 м3,4 соткиПомещаются 2 машины Гараж 16 метров, имеется яма Подвал в домеФундамент крепкий, можно построить 2 этаж, стены толстые, коммунальные платежи низкие. Звоните, договоримся открыты к диалогу....
    • 1 эт.
    • 67 м²
    • 3 сот.
    7 500 000 Р
    Агент
    +7 (989) Показать номер
    Посмотреть контакты
    Дом в Ростовская область, Таганрог ул. Кретова, 48 (95 м) - Фото 1
    Дом в Ростовская область, Таганрог ул. Кретова, 48 (95 м) - Фото 2
    1 этаж, общая площадь 95м², участок 4 сотки

    Арт.Продается новый кирпичный дом 95 кв. м. на участке 4,2 сотки земли по адресу: ЖК Андреевский, ул. Кретова 48. ПРОДАЖА ОТ СОБСТВЕННИКА БЕЗ КОМИССИИ АГЕНТСТВА Подходит под семейную и льготную ипотеку В ДКП показываем полную стоимость без...
    • 1 эт.
    • 95 м²
    • 4 сот.
    7 500 000 Р
    Агент
    +7 (919) Показать номер
    Посмотреть контакты
    Дом в Таганрог, улица Старцева, 34 (65.6 м) - Фото 1
    Дом в Таганрог, улица Старцева, 34 (65.6 м) - Фото 2
    1 этаж, общая площадь 65м², участок 6 соток

    Арт.BHИMAHИE Продaeтся дом в тихом районе города Taганpoгa Недалеко от моря 5 комнат (3 изолированные и 2 проходные), просторная кухня Во дворе хозпостройки, гараж Земли 6 соток Есть место под беседку, мангал, бассейн Или можно построить...
    • 1 эт.
    • 65 м²
    • 6 сот.
    7 499 999 Р
    Агент
    +7 (961) Показать номер
    Посмотреть контакты
    Дом в Ростовская область, Таганрог ул. Шишкина, 14 (175 м) - Фото 1
    Дом в Ростовская область, Таганрог ул. Шишкина, 14 (175 м) - Фото 2
    2 этажа, общая площадь 175м², участок 5 соток

    В Ростовской области наблюдаются проблемы со связью, если вы не можете дозваниваться - напишите сообщение ЭКСКЛЮЗИВНО ТОРГ Предлагаем к покупке трехкомнатный дом, улучшенной и интересной планировки для креативных,творческих и стильных людей Возможен...
    • 2 эт.
    • 175 м²
    • 5 сот.
    7 500 000 Р
    Агент
    +7 (919) Показать номер
    Посмотреть контакты

    Не нашли подходящего объявления?

    Оставьте заявку, и наши риэлторы подберут купить дом в районе Таганрога

    (0)