4 200 000 Р 51 610 $ или 44 790

Информация об помещении

1
Этаж

Состояние и оснащение

Количество этажей
5
Развернуть
Агент
+7 (988) 580-98-98
Начать чат с агентом

Склад в Ростовская область, Ростов-на-Дону Сельмаш мкр, ул. ...

Без комиссии для покупателя Продается уникальное коммерческое помещение в самом сердце Сельмаша Общая площадь 246 кв.м., высота потолков 2.44 м., включает двенадцать изолированных комнат разной величины. Это идеальное решение для бизнеса, который требует многофункционального пространства.Помещение расположено в подвале жилого кирпичного дома с отдельным входом, что обеспечивает удобный доступ для клиентов и сотрудников. Отличные подъездные пути и развитая инфраструктура создают идеальные условия для успешной работы вашего бизнеса. Все коммуникации центральные. Это помещение идеально подходит как для склада, так и для офисов, магазинов или сервисных центров. Не упустите возможность приобрести это выгодное предложение Звоните прямо сейчас, чтобы узнать подробности и записаться на просмотр Дополнительно оплачивается комиссия с покупателя. Код пользователя: 188061Номер в базе: 7813350

Читать полностью
    Позвонить Написать
    4 200 000 Р51 610 $ или 44 790
    Агент
    +7 (988) 580-98-98
    Начать чат с агентом
    Похожие предложения
    Склад в Архангельская область, Пинежский муниципальный округ, пос. ... - Фото 1
    Склад в Архангельская область, Пинежский муниципальный округ, пос. ... - Фото 2
    ОАO РЖД предлагает к продаже имущественный комплекс общей площадью 1416,3 кв. м в поселке Междуреченский Архангельской области.Имущественный комплекс состоит из четырех объектов недвижимости общей площадью 1416,3 кв. м. Зданиегода постройки. Объекты подходят...
    • 1/1 эт.
    4 284 000 Р
    Агент
    +7 (911) Показать номер
    Посмотреть контакты
    Склад в Крым, Ялта ул. Блюхера, 22А (42 м) - Фото 1
    Склад в Крым, Ялта ул. Блюхера, 22А (42 м) - Фото 2
    Продам склад в проходном месте, Промбаза. Земля под зданием приватизирована. Высокие потолки. Сухое помещение.Есть электричество, стеллажи. Видео пришлю по запросу.
    • 1/3 эт.
    4 200 000 Р
    Агент
    +7 (918) Показать номер
    Посмотреть контакты
    Склад в Алтайский край, Бийск ул. Валериана Куйбышева, 55 (108 м) - Фото 1
    Склад в Алтайский край, Бийск ул. Валериана Куйбышева, 55 (108 м) - Фото 2
    Выставлено в продажу торгово-производственное помещение площадью 108 м/кв на земельном участке 5,6 соток в старом центре города Бийска. В данный момент используется, как СТО автомобилей. Два входа, ворота, своя скважина, своя система отопления, сан.узел...
    • 1/1 эт.
    4 230 000 Р
    Агент
    +7 (913) Показать номер
    Посмотреть контакты
    Склад в Свердловская область, Нижний Тагил Индустриальная ул. (324 м) - Фото 1
    Склад в Свердловская область, Нижний Тагил Индустриальная ул. (324 м) - Фото 2
    Арт.В Нижнем Тагиле на ул. Индустриальная продается склад/бокс. Общая площадь 324 м.кв. Есть электричество, но отопления на данный момент нет (раньше было). Склад использовался арендаторами по прямому назначению. возможно организовать какое-либо производство...
    • 1/1 эт.
    4 100 000 Р
    Агент
    +7 (912) Показать номер
    Посмотреть контакты
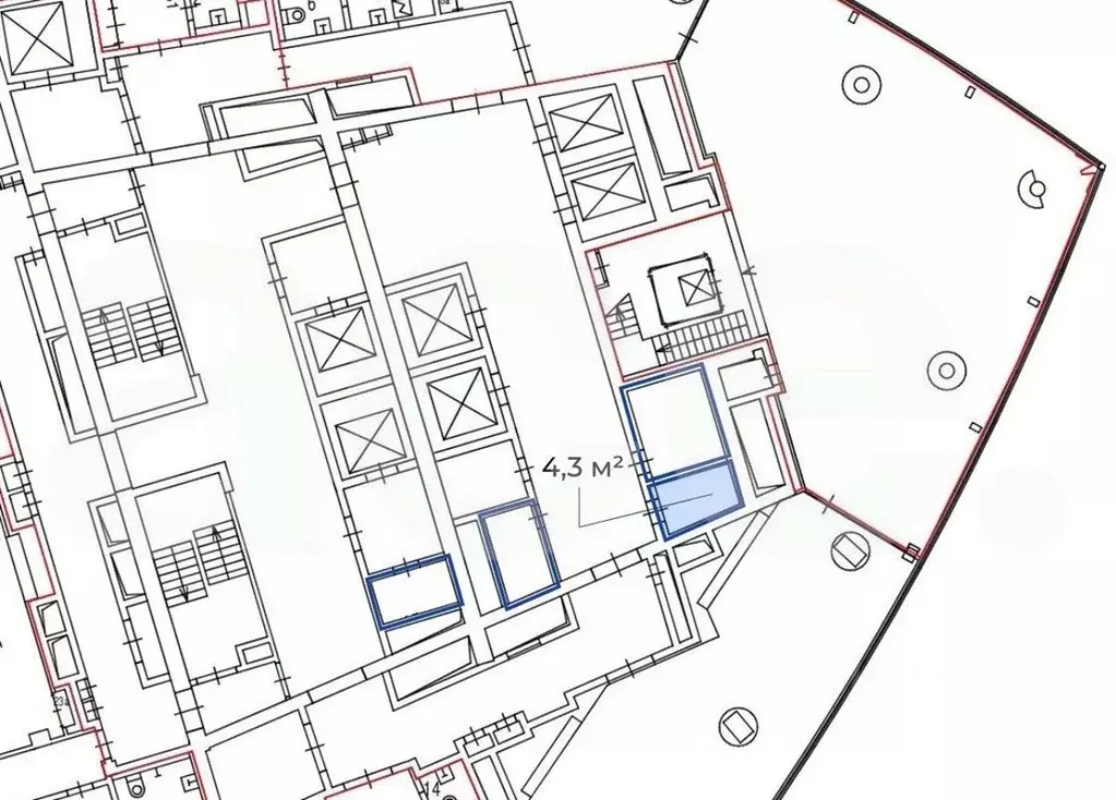
    Склад в Москва наб. Пресненская, 12 (4 м) - Фото 1
    Склад в Москва наб. Пресненская, 12 (4 м) - Фото 2
    Продажа нежилого помещения в Башне Федерация Восток.Этаж 93.Площадь 4,3 кв.м. Высота потолков 5 метров.Планировка: открытая.Состояние: без отделки.Коммуникации: Электричество.Идеально под: мастерская, склад, архив, подсобное помещение, регистрацию юр....
    • 93/95 эт.
    4 300 000 Р
    Агент
    +7 (915) Показать номер
    Посмотреть контакты

    Не нашли подходящего объявления?

    Оставьте заявку, и наши риэлторы подберут склад в районе Ростова-на-Дону

    (0)