135 000 000 Р 1 648 400 $ или 1 405 500

Информация об помещении

1100 м2
Площадь

Состояние и оснащение

Общая площадь складского комплекса, м2
1100
Развернуть
Агент
Крутько Анатолий Сергеевич
+7 (918) 554-50-60
Начать чат с агентом

Продажа ПСН, Ростов-на-Дону, 1-й Конной армии

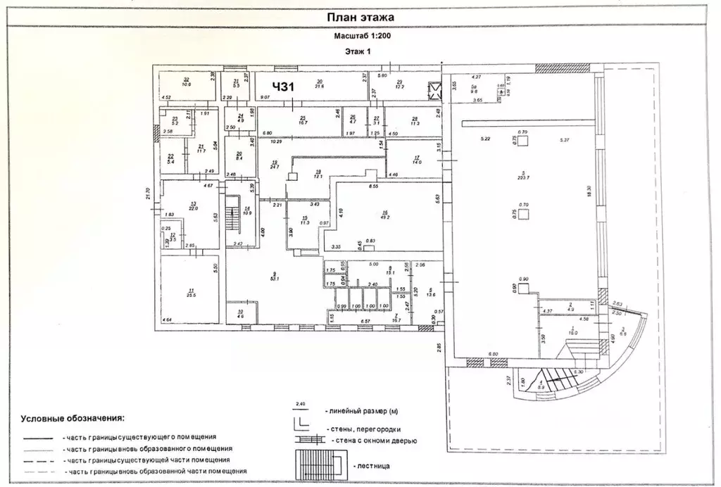
Продажа нежилого помещения площадью 1100 м2. Локация - Сельмаш, жилой комплекс «Парк Островского» - густонаселенный район с активным трафиком. Нежилые помещения - полный первый этаж многоквартирного жилого дома, 6 входов - возможность разделения помещения на части. Высокие потолки. Состояние ремонта - выполнены стяжка и штукатурка. Часть помещения сдано в аренду - 350 м2, арендный поток 350 000\мес. Отлично подходит под арендный бизнес.

Читать полностью

    Для того, чтобы купить ПСН площадью 1100 кв. метров по адресу: Ростов-на-Дону, Первомайский, 1-й Конной армии, 13, позвоните по телефону +7 (918) 554-50-60. Торопитесь! Объявление №901087540 о продаже ПСН площадью 1100 кв. метров опубликовано Сегодня.

    Позвонить Написать
    135 000 000 Р1 648 400 $ или 1 405 500
    Агент
    Крутько Анатолий Сергеевич
    +7 (918) 554-50-60
    Начать чат с агентом
    Похожие предложения
    Помещение свободного назначения в Ростовская область, Ростов-на-Дону ... - Фото 1
    Помещение свободного назначения в Ростовская область, Ростов-на-Дону ... - Фото 2
    Продается в жилом комплексе Парк Островского площадью 1095, 1 кв. м по адресу г. Ростов-на-Дону, улица 1-й Конной Армии, 13В.Характеристики и преимущества помещения:- кадастровый номер: 61:44:0023201:1199- 1-й этаж 17-ти этажного жилого дома- жилой...
    • 1/17 эт.
    135 000 000 Р
    Агент
    +7 (988) Показать номер
    Посмотреть контакты
    Помещение свободного назначения в Ростовская область, Ростов-на-Дону, ... - Фото 1
    Помещение свободного назначения в Ростовская область, Ростов-на-Дону, ... - Фото 2
    Каталожный номер — C000462Продается в Центре города по улице Каяни, 20 (около парка Революции) 5-и этажное здание общей площадью 2900 кв.м. Все коммуникации есть. Земля в собственности. Много парковочных мест около здания. Престижное и дорогое место....
    • 1/5 эт.
    150 000 000 Р
    Агент
    +7 (989) Показать номер
    Посмотреть контакты
    Помещение свободного назначения в Ростовская область, Ростов-на-Дону ... - Фото 1
    Помещение свободного назначения в Ростовская область, Ростов-на-Дону ... - Фото 2
    Арт.Продается коммерческое помещение от застройщика. Без комиссии для покупателей Это уникальное предложение для тех, кто ищет идеальное местоположение для развития своего бизнеса в самом сердце Ростова-на-Дону. Здесь вы найдете всё необходимое для успешного...
    • 1/10 эт.
    131 766 240 Р
    Агент
    +7 (918) Показать номер
    Посмотреть контакты
    Помещение свободного назначения в Ростовская область, Ростов-на-Дону ... - Фото 1
    Помещение свободного назначения в Ростовская область, Ростов-на-Дону ... - Фото 2
    Арт.Продается коммерческое помещение от застройщика. Без комиссии для покупателей Это уникальное предложение для тех, кто ищет идеальное местоположение для развития своего бизнеса в самом сердце Ростова-на-Дону. Здесь вы найдете всё необходимое для успешного...
    • 1/10 эт.
    134 334 969 Р
    Агент
    +7 (918) Показать номер
    Посмотреть контакты
    Помещение свободного назначения в Ростовская область, Ростов-на-Дону ... - Фото 1
    Помещение свободного назначения в Ростовская область, Ростов-на-Дону ... - Фото 2
    Продается коммерческое помещение в клубном квартале 1799 от застройщика Федеральный девелопер Неометрия .Это уникальное предложение для тех, кто ищет идеальную площадку для развития своего бизнеса в самом сердце Ростова-на-Дону. Здесь вы найдете всё...
    • 1/10 эт.
    135 791 195 Р
    Агент
    +7 (989) Показать номер
    Посмотреть контакты

    Не нашли подходящего объявления?

    Оставьте заявку, и наши риэлторы подберут псн в районе Ростова-на-Дону

    (0)