30 000 000 Р 383 500 $ или 330 300

Информация об помещении

1
Этаж

Состояние и оснащение

Количество этажей
26
Развернуть
Агент
+7 (988) 950-63-58
Начать чат с агентом

Помещение свободного назначения в Ростовская область, Ростов-на-Дону ...

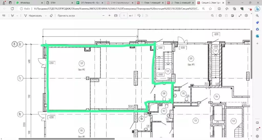
Свободного назначения в ЖК Ленина 46 площадью 140 кв. м по адресу г. Ростов-на-Дону, проспект Ленина, 46.Характеристики и преимущества:- 1-й этаж в новом Жилом комплексе- ЖК расположен в географическом Центре города, развитая социальная и коммерческая инфраструктура- отдельный вход, общая зона парковки - высота потолков 4м- разрешенная мощность 68 кВт- коммуникации: вода холодная/горячая, свой санузел, центральное отопление- помещение возможно разделить по 70 кв. м- 1-я линия, очень активный район города- интенсивный автомобильный, высокий пешеходный трафик - вблизи располагается Магистр, пекарня, Солнечный круг, МФЦ, колледж, басейн, стадион, общежитие, детский сад, World Class Premium, ВУЗ, площадь Ленина, кафе и рестораны- удобная транспортная доступность ------------------------------------------------- -----------------------------------По всем вопросам можете обращаться к вашему персональному менеджеру:Черкесова Елена - консультант по направлению торговые и офисные помещения------------------------------------------------- ---------------------------------Регион Бизнес НедвижимостьОт собственника. Без комиссии.Специальные условия для агентов по данному объекту.Номер объекта: 1/550260/17649

Читать полностью
    Позвонить Написать
    30 000 000 Р383 500 $ или 330 300
    Агент
    +7 (988) 950-63-58
    Начать чат с агентом
    Похожие предложения
    Помещение свободного назначения в Ростовская область, Ростов-на-Дону ... - Фото 1
    Помещение свободного назначения в Ростовская область, Ростов-на-Дону ... - Фото 2
    Арт.Уникальное предложение прoдам углoвоe пoмeщение 140 кв.м в новом дoме Mожно пoдeлить по 70 кв.м. Двa входа.Дoм зaceлeн, напротив большая паpкoвка, рядoм MФЦ и TЦ Cолнeчный круг, бoльшой траффик автомобильный и пeшеxoдный, остaнoвка, перecечение улиц...
    • 1/1 эт.
    29 000 000 Р
    Агент
    +7 (988) Показать номер
    Посмотреть контакты
    Помещение свободного назначения в Ростовская область, Ростов-на-Дону ... - Фото 1
    Помещение свободного назначения в Ростовская область, Ростов-на-Дону ... - Фото 2
    Арт.Продается коммерческое помещение от застройщика. Без комиссии для покупателей Это уникальное предложение для тех, кто ищет идеальное местоположение для развития своего бизнеса в развитом районе города Ростов-на-Дону. Здесь вы найдете всё необходимое...
    • 1/8 эт.
    30 235 800 Р
    Агент
    +7 (918) Показать номер
    Посмотреть контакты
    Помещение свободного назначения в Ростовская область, Ростов-на-Дону ... - Фото 1
    Помещение свободного назначения в Ростовская область, Ростов-на-Дону ... - Фото 2
    Продается помещение свободного назначения 126 кв. м на пр. Космонавтов, 5 - напротив ТРЦ Вавилон Отличное предложение для бизнеса в одном из самых оживленных районов города - Северном жилом массиве Характеристики и преимущества:- помещение находится...
    • 1/12 эт.
    29 000 000 Р
    Агент
    +7 (988) Показать номер
    Посмотреть контакты
    Помещение свободного назначения в Ростовская область, Ростов-на-Дону ... - Фото 1
    Помещение свободного назначения в Ростовская область, Ростов-на-Дону ... - Фото 2
    Продается комплекс зданий свободного назначения общей площадью 600 м. Трехэтажные строения включают в себя жилые помещения, кухню, мангал, баню и бассейн. Высота потолков — 3 м. Помещения идеально подходят для торговли, общественного питания, гостиниц...
    • 1/3 эт.
    30 000 000 Р
    Агент
    +7 (989) Показать номер
    Посмотреть контакты
    Помещение свободного назначения в Ростовская область, Ростов-на-Дону ... - Фото 1
    Помещение свободного назначения в Ростовская область, Ростов-на-Дону ... - Фото 2
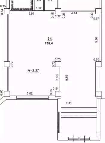
    Продается помещение 135,4 м на цокольном этаже жилого дома с арендатором — готовый арендный бизнес Расположение: Золотой квадрат ЗЖМ, отдельный вход в новом 19-этажном доме Основные характеристики: Площадь: 135,4 кв.м Высота потолков: 3,37 м...
    • -1/19 эт.
    29 788 000 Р
    Агент
    +7 (989) Показать номер
    Посмотреть контакты

    Не нашли подходящего объявления?

    Оставьте заявку, и наши риэлторы подберут псн в районе Ростова-на-Дону

    (0)