10 500 000 Р 134 200 $ или 115 600

Информация о квартире

72 м2
Площадь
9 м2
Кухня
2
Комнаты
7
Этаж
10
Этажность

Дополнительная информация

Тип дома
кирпичный
Развернуть
Агент
+7 (988) 941-64-89
Начать чат с агентом

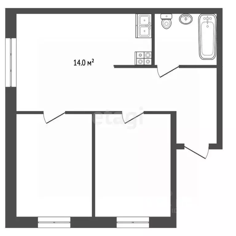
2-к кв. Ростовская область, Ростов-на-Дону ул. Лелюшенко, 13 (72.0 м)

Продаётся светлая и просторная 2-комнатная квартира в Ростове-на-ДонуПредлагается к продаже качественно отремонтированная двухкомнатная квартира площадью 72 м, расположенная на 7-м этаже кирпичного дома 2007 года постройки. Квартира отличается продуманной, удобной планировкой и наполнена светом благодаря большим окнам.Особенности этой квартиры•В квартире выполнен дорогой дизайнерский ремонт с использованием качественных материалов, что обеспечивает великолепный внешний вид и долговечность.•Просторные комнаты, позволяющие рационально организовать жилое пространство под любые нужды.•Кухня площадью 9 м удобно размещена и отлично подойдет как для приготовления пищи, так и для семейных обедов.•Светлая атмосфера квартиры создаёт уют и комфорт, а высокий этаж добавляет ощущение приватности и хорошего обзора.Инфраструктура дома и придомовая территория•Дом кирпичный, что гарантирует хорошую тепло- и шумоизоляцию, серия 1-511, 10 этажей.•В здании работают грузовой и пассажирский лифты, что обеспечивает комфортное перемещение по этажам.•Во дворе открытая благоустроенная территория с детской площадкой и площадкой для выгула собак — прекрасное место для отдыха.•Наземный паркинг решит вопросы с парковкой автомобиля.Дополнительные преимущества•Первый этаж дома занят нежилыми помещениями, что создаёт дополнительный комфорт и спокойствие для жителей.•Современная система отопления и отсутствие газа в квартире обеспечивают безопасность и экономию.•Район с развитой инфраструктурой и удобной транспортной доступностью — всё необходимое для жизни находится в шаговой доступности.Эта квартира — отличный выбор для тех, кто ценит комфорт, стиль и спокойствие в городской среде. Все документы готовы, квартира свободна для просмотра и оперативного оформления сделки.Если нужно добавить еще больше деталей или акцентов, сообщите. Дополнительно оплачивается комиссия с покупателя.Код пользователя: 184041Номер в базе: 9784397

Читать полностью

    Для того, чтобы купить двухкомнатную квартиру по адресу: Ростов-на-Дону, Первомайский, ул. Лелюшенко, 13, позвоните по телефону +7 (988) 941-64-89. Торопитесь! Объявление №30092074617 о продаже двухкомнатной квартиры опубликовано 28 ноября 2025.

    Позвонить Написать
    10 500 000 Р134 200 $ или 115 600
    Агент
    +7 (988) 941-64-89
    Начать чат с агентом
    Похожие предложения
    3-к кв. Ростовская область, Ростов-на-Дону Днепровский пер., 117с1 ... - Фото 1
    3-к кв. Ростовская область, Ростов-на-Дону Днепровский пер., 117с1 ... - Фото 2
    3-комнатная квартира, общая площадь 75м², кухня 14м²

    Продается 3-комнатная квартира площадью 75 м в жилом комплексе Днепровская роща Эта квартира с эксклюзивной планировкой и дизайнерским ремонтом станет идеальным местом для комфортной жизни. Просторная кухня-гостиная, большой санузел с ванной и душем,...
    • 75 м²
    • 3-ком
    • 11/24 эт.
    10 200 000 Р
    Агент
    +7 (988) Показать номер
    Посмотреть контакты
    2-к кв. Ростовская область, Ростов-на-Дону просп. Шолохова, 211/1с3 ... - Фото 1
    2-к кв. Ростовская область, Ростов-на-Дону просп. Шолохова, 211/1с3 ... - Фото 2
    2-комнатная квартира, общая площадь 68м², жилая 37м², кухня 11м²

    Арт.Предлагается к продаже исключительная двухкомнатная квартира в престижном жилом комплексе Манхеттен ( пр-т Шолохова 211/1), символе комфорта и современного образа жизни. Возведенный в 2016 году, монолитно-кирпичный дом бизнес-класса демонстрирует...
    • 68 м²
    • 2-ком
    • 2/11 эт.
    11 500 000 Р
    Агент
    +7 (989) Показать номер
    Посмотреть контакты
    3-к кв. Ростовская область, Ростов-на-Дону просп. Сельмаш, 16 (63.0 м) - Фото 1
    3-к кв. Ростовская область, Ростов-на-Дону просп. Сельмаш, 16 (63.0 м) - Фото 2
    3-комнатная квартира, общая площадь 63м², жилая 43м², кухня 7м²

    Каталожный номер — F050171НЕ ФЕЙК. Продается очень уютная, красивая, с шикарным ремонтом трехкомнатная квартира. В отличном месте, район Сельмаша. Квартира расположена на удобном четвертом этаже.В квартире выполнен качественный ремонт с использованием...
    • 63 м²
    • 3-ком
    • 4/9 эт.
    10 500 000 Р
    Агент
    +7 (988) Показать номер
    Посмотреть контакты
    3-к кв. Ростовская область, Ростов-на-Дону ул. Пановой, 25А (92.2 м) - Фото 1
    3-к кв. Ростовская область, Ростов-на-Дону ул. Пановой, 25А (92.2 м) - Фото 2
    3-комнатная квартира, общая площадь 92м², жилая 55м², кухня 12м²

    ПРОДАЮ СРОЧНО шикарную 3-к комнатную квартиру в прекрасном районе нашего города. До центра проехать 15минут. У дома вся необходимая инфраструктура: магазины, школа на стороне дома (не нужно переходить дорогу), больница и т.д.Чистая, уютная квартира с...
    • 92 м²
    • 3-ком
    • 3/5 эт.
    • кирпичный
    10 500 000 Р
    Агент
    +7 (918) Показать номер
    Посмотреть контакты
    2-к кв. Ростовская область, Ростов-на-Дону просп. Шолохова, 211/4 ... - Фото 1
    2-к кв. Ростовская область, Ростов-на-Дону просп. Шолохова, 211/4 ... - Фото 2
    2-комнатная квартира, общая площадь 64м², жилая 36м², кухня 14м²

    Продаю без комиссии В Продаже Реальный объект в ЖК Манхэттен Дизайнерский новый ремонт,все сделано со вкусом из дорогостоящих материалов Остается вся мебель и техника Документы готовы к продаже Ремонт из премиум материалов
    • 64 м²
    • 2-ком
    • 7/13 эт.
    11 300 000 Р
    Агент
    +7 (918) Показать номер
    Посмотреть контакты

    Не нашли подходящего объявления?

    Оставьте заявку, и наши риэлторы подберут квартиру в районе Ростова-на-Дону

    (0)