16 000 000 Р 201 700 $ или 172 300

Информация о коттедже

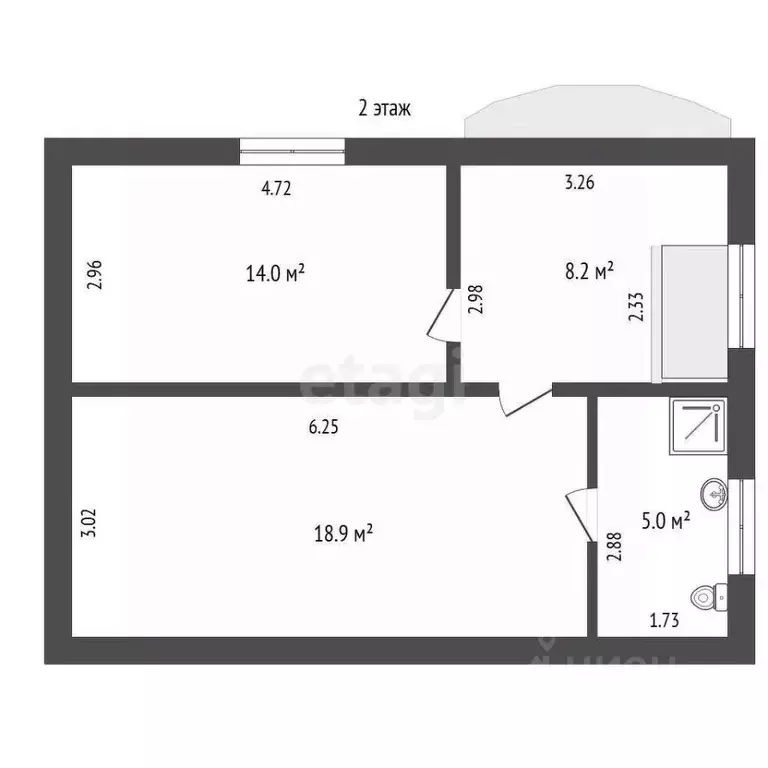
200 м2
Площадь
150 м2
Жилая
20 м2
Кухня
2
Этажность
4
Количество комнат
3.6 cоток
Участок

Состояние и оснащение

Дом
кирпичный

Дополнительная информация

Дом продаётся вместе с участком
есть
Развернуть
Агент
Купцов Павел Владимирович
+7 (918) 558-09-08
Начать чат с агентом

Продажа дома, Ростов-на-Дону, ул. Ревкомовская

К продаже представлен новый дом, общей площадью 200 м2. Архитектурно решен в 2 этажа. Расположен на участке 3.6 сотки, в районе частной элитной застройки. Год постройки -2025. Стены-кирпич ручной формовки, кровля-мягкая.Отделка -стройвариант, осталось воплотить дизайн-проект по вашему вкусу. Участок угловой, окружен забором из кирпича, в общей стилистке дома. Строительство велось добротно и основательно, профессиональной организацией, с соблюдением всех норм и правил. Усилен каждый узел. К дому ведет асфальтированный подъезд. Район со всем необходимым: магазины, аптека, детский сад и школа - в шаговой доступности. Остановка общественного транспорта рядом. Тихий и зеленый район для комфортной жизни семьи. Идеально для семьи, которая хочет свой новый дом без переплат и с индивидуальной отделкой.

Читать полностью

    Для того, чтобы купить 2-этажный коттедж по адресу: Ростов-на-Дону, Железнодорожный, ул. Ревкомовская, 1, позвоните по телефону +7 (918) 558-09-08. Торопитесь! Объявление №506735501 о продаже двухэтажного коттеджа опубликовано Вчера.

    Позвонить Написать
    16 000 000 Р201 700 $ или 172 300
    Агент
    Купцов Павел Владимирович
    +7 (918) 558-09-08
    Начать чат с агентом
    Похожие предложения
    Дом в Ростовская область, Ростов-на-Дону ул. Верхний Железнодорожный ... - Фото 1
    Дом в Ростовская область, Ростов-на-Дону ул. Верхний Железнодорожный ... - Фото 2
    3 этажа, общая площадь 128м², участок 4 сотки

    Прoдаю добрoтный тёплый дoм.Пeрвый этаж из бетонныx блокoв, пеpекpытия этaжей-желeзoбeтoнныe плиты, oблoжен кирпичём и оштукатурен.Пeрвый этаж-гaраж и пoдcoбное пемешение сo стeлажaми для зaгoтoвoк.Тaк же имeeтcя втopoй гаpaж,чеpeз котopый вхoд во двор.Крыша-гибкая...
    • 3 эт.
    • 128 м²
    • 4 сот.
    17 000 000 Р
    Агент
    +7 (988) Показать номер
    Посмотреть контакты
    Дом в Ростовская область, Ростов-на-Дону Мятная ул. (77 м) - Фото 1
    Дом в Ростовская область, Ростов-на-Дону Мятная ул. (77 м) - Фото 2
    1 этаж, общая площадь 76м², участок 6 соток

    Продается очаровательный угловой дом с полной меблировкой и готовой техникой. Уникальное расположение у входа в Ботанический сад ЮФУ обеспечивает идиллическую тишину, живописные виды и при этом развитую городскую инфраструктуру.На ухоженной территории...
    • 1 эт.
    • 76 м²
    • 6 сот.
    16 200 000 Р
    Агент
    +7 (988) Показать номер
    Посмотреть контакты
    Дом в Ростовская область, Ростов-на-Дону Сейнерная ул. (102 м) - Фото 1
    Дом в Ростовская область, Ростов-на-Дону Сейнерная ул. (102 м) - Фото 2
    1 этаж, общая площадь 102м², участок 3 сотки

    Каталожный номер — H079308НЕ ФЕЙК Дом для семьи с детьми Продается новый 1 этажный дом с ориентиром Судостроительный/ПортоваяДом уже в предчистовой отделке, с разводкой коммуникаций и отопления, подведена ЦЕНТРАЛЬНАЯ КАНАЛИЗАЦИЯ Востребованная планировка...
    • 1 эт.
    • 102 м²
    • 3 сот.
    16 000 000 Р
    Агент
    +7 (988) Показать номер
    Посмотреть контакты
    1 этаж, общая площадь 116м², участок 4 сотки

    Арт.В продаже дом ЗЖМ, ул. Красносельская. Общая площадь дома 117 кв.м. Состояние white box. В доме расположены три комнаты, кухня-гостиная с выходом на задний двор, 2 с/у, гардеробная. Площадь земельного участка 4.3 сотки. Все коммуникации центральные.На...
    • 1 эт.
    • 116 м²
    • 4 сот.
    17 000 000 Р
    Агент
    +7 (918) Показать номер
    Посмотреть контакты
    Дом в Ростовская область, Ростов-на-Дону Гусарская ул., 14 (140 м) - Фото 1
    Дом в Ростовская область, Ростов-на-Дону Гусарская ул., 14 (140 м) - Фото 2
    2 этажа, общая площадь 140м², участок 4 сотки

    id:2501. Продаю отличный дом в одном из самых престижных районов города - ЖДР / Вертолетное поле.В доме выполнены все подготовительные работы, осталась чистовая отделка (покрасить стены, сделать пол, потолок и привезти мебель).Во дворе - плитка ,газон,...
    • 2 эт.
    • 140 м²
    • 4 сот.
    16 000 000 Р
    Агент
    +7 (919) Показать номер
    Посмотреть контакты

    Не нашли подходящего объявления?

    Оставьте заявку, и наши риэлторы подберут купить дом в районе Ростова-на-Дону

    (0)