Реализация объекта недвижимости приостановлена

Информация о коттедже

126.0 м2
Площадь
2
Этажность
3.0 cоток
Участок

Дополнительная информация

Дом продаётся вместе с участком
есть
Развернуть

Дом в Ростовская область, Ростов-на-Дону Авиационная ул. (127 м)

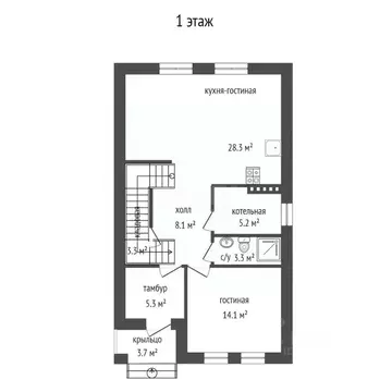
Продается 2-х этажный дом площадью 126,5 м2,асположенный на земельном участке 3,2 сотки.В доме выполнена пред чистовая отделка, разводка электрики. Установлен газовый котел. Входная дверь не под замену. Двухкамерные металлопластиковые окна.Коммуникации заведены в дом: газ, вода-централизованая, свет, канализация-яма.Территория участка огорожена. Фасадная часть -кирпичный забор с ролл-воротами. Двор выложен тротуарной плиткой. Дом расположен в районе с развитой инфраструктурой: детский сад, школа, остановка транспорта, сетевые магазины. Дополнительно оплачивается комиссия с покупателя. Код пользователя: 184041Номер в базе: 8666474

Читать полностью

    Реализация объекта недвижимости приостановлена

    Не нашли подходящего объявления?

    Оставьте заявку, и наши риэлторы подберут купить дом в районе Ростова-на-Дону

    (0)