230 000 Р 2 840 $ или 2 460

Информация об помещении

2
Этаж

Состояние и оснащение

Количество этажей
2
Развернуть
Агент
+7 (988) 950-63-58
Начать чат с агентом

Помещение свободного назначения в Ростовская область, Мясниковский ...

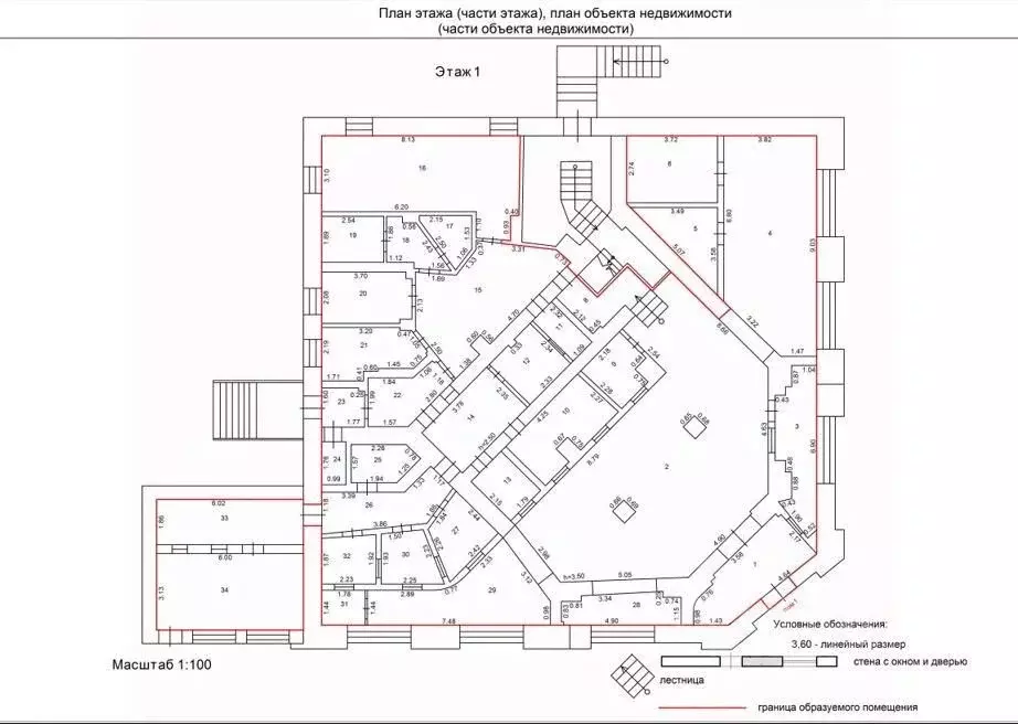
Сдается помещение свободного назначения с высоким трафиком площадью 237 кв. м на 1-ой линии по адресу хутор Ленинаван, улица Ленина, 1ПГотовая коммерческая недвижимость с развитой инженерией и инфраструктуройХарактеристики и преимущества:- 2-й этаж- 1-я линия, фасад на дорогу - максимальная видимость, удобная навигация для клиентов и транспорта. Расположение в активной части посёлка с удобным подъездом.- Интенсивный трафик - постоянный поток автомобилей и прохожих обеспечивает стабильную проходимость. В пешей доступности: школа, парк, Магнит Косметик , Пятёрочка , чайхана и иные объекты ежедневной нужды — постоянный локальный поток клиентов- Отдельный вход + запасной выход- Общая зона парковки - удобство для посетителей- Коммуникации: холодная и горячая вода, своя котельная, свой санузел- Собственная подстанция- Установлены сплит-системы- Проведен интернет, пожарная и охранная сигнализация- Высота потолков 3 м - Доступ для арендатора 24/7------------------------------------------------- -----По всем вопросам можете обращаться к вашему персональному менеджеру:Лилия Ляшова- Консультант продаже и аренде офисных помещений------------------------------------------------- -----Регион Бизнес НедвижимостьОт собственника. Без комиссии.Специальные условия для агентов по данному объектуНомер объекта: 1/553037/17649

Читать полностью
    Позвонить Написать
    230 000 Р2 840 $ или 2 460
    Агент
    +7 (988) 950-63-58
    Начать чат с агентом
    Похожие предложения
    Помещение свободного назначения в Ростовская область, Ростов-на-Дону ... - Фото 1
    Помещение свободного назначения в Ростовская область, Ростов-на-Дону ... - Фото 2
    Офис в хорошем состоянии, кабинетная система площадью 200 кв. м по адресу г. Ростов-на-Дону, Университетский переулок, 115.Характеристики и преимущества:- 4-й этаж 6-ти этажного здания- 2-я линия, активный Центр города- интенсивный автомобильный и пешеходный...
    • 4/6 эт.
    240 000 Р
    Агент
    +7 (988) Показать номер
    Посмотреть контакты
    Помещение свободного назначения в Ростовская область, Ростов-на-Дону ... - Фото 1
    Помещение свободного назначения в Ростовская область, Ростов-на-Дону ... - Фото 2
    Отдельно стоящее одноэтажное здание с подвалом, общей площадью 237, 2 кв. м, по адресу: г. Ростов-на-Дону, ул. Темерницкая, 65Характеристики и преимущества:- самостоятельное строение: 1 этаж + подвальное помещение- площадь 1-го этажа - 124, 2 кв. м, площадь...
    • 1/1 эт.
    240 000 Р
    Агент
    +7 (988) Показать номер
    Посмотреть контакты
    Помещение свободного назначения в Ростовская область, Ростов-на-Дону ... - Фото 1
    Помещение свободного назначения в Ростовская область, Ростов-на-Дону ... - Фото 2
    Торговая точка, опт, склад, спорт зал с парковкой площадью 250 кв. м по адресу г. Ростов-на-Дону, Каскадная улица, 194/2Характеристики и преимущества:- 1-й этаж 2-х этажного здания - отдельный вход, своя зона парковки на 6 м/мест - высота потолков 5м,...
    • 1/2 эт.
    220 000 Р
    Агент
    +7 (988) Показать номер
    Посмотреть контакты
    Помещение свободного назначения в Ростовская область, Ростов-на-Дону ... - Фото 1
    Помещение свободного назначения в Ростовская область, Ростов-на-Дону ... - Фото 2
    Торгово-офисное помещение в Центре города площадью 300 кв. м по адресу г. Ростов-на-Дону, ул. Московская 55Характеристики и преимущества:- цокольный этаж 4-х этажного здания- 1-я линия, фасад выходит на ул. Московскую, возможно размещение рекламной вывески-...
    • -1/4 эт.
    240 000 Р
    Агент
    +7 (988) Показать номер
    Посмотреть контакты
    Помещение свободного назначения в Ростовская область, Цимлянск ул. ... - Фото 1
    Помещение свободного назначения в Ростовская область, Цимлянск ул. ... - Фото 2
    Сбер А предлагает к аренде нежилое помещение, площадью 496,3 кв. м., расположенное по адресу: Ростовская обл., Цимлянский район, г. Цимлянск, ул. Ленина 31/3Продажа посредством проведения торгов на электронной площадке Сбербанк-АСТ.Номер процедуры: SBRСобственник:...
    • 1/1 эт.
    233 460 Р
    Агент
    +7 (912) Показать номер
    Посмотреть контакты

    Не нашли подходящего объявления?

    Оставьте заявку, и наши риэлторы подберут псн в районе Ленинавана

    (0)