10 300 000 Р 131 700 $ или 113 400

Информация о коттедже

220 м2
Площадь
130 м2
Жилая
15 м2
Кухня
2019
Построен
2
Этажность
5
Количество комнат
7.7 cоток
Участок

Состояние и оснащение

Дом
блочный
Год постройки
2019
Окна
пластиковые
Входная дверь
железная
Мансарда
есть

Дополнительная информация

Количество санузлов
3
Тип санузла
совмещенный
Расположение туалета
в доме
Расположение душа
в доме
Количество спален
4
Цокольное помещение
есть
Дом продаётся вместе с участком
есть
Категория назначения землепользования
знп земли населенных пунктов
Вид разрешенного использования для участка
знп для ижс

Коммуникации

Газоснабжение
проходит по границе участка
Электроснабжение
обеспечено действующим договором с электросбытовой компанией

Территория

Рельеф местности
ровный
Водоём
пруд, удаленность 1 км.
Развернуть
Дарбинян Норайр
PRO
+7 (961) 300-01-02
Профессионал AFY.ru с 2011 г.
Начать чат с агентом

Новый дом 220 кв.м. в пригороде Ростова, п. Ленинаван

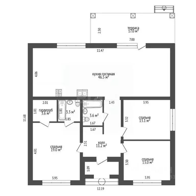
Новый 3-уровневый дом (подвал, 1-й этаж и мансарда), размеры в плане 10х12 м, Общая площадь дома 223 кв. м. На первом этаже расположены зал площадью 35, 5 кв. м, 3 спальни (14, 5 кв. м, 11, 4 кв. м. и 13, 4 кв. м, из которой есть дверь для выхода на террасу), кухня 12, 7 кв. м, коридор 8, 7 кв.м. и два санузла (3,8 кв.м. и 8,4 кв.м.). Площадка на лестнице 4,7 кв.м. Площадь первого этажа 108,4 кв.м. Площадь подвального этажа 55 кв.м, мансарды- 55,8 кв.м. Участок 8 соток, земля в собственности. Подвальный этаж и часть первого этажа с железобетонными перекрытиями. Подвальная и цокольная часть дома выполнены из железобетонных конструкций с частичной отделкой из кирпича, первый этаж и мансарда выполнены из газобетонных блоков с утеплением из теплоизоляционных плит экструдированного пенополистирола. Все удобства, теплые полы, отопительный котел работающий на электричестве. Газ проходит по улице. Участок 8 соток, земля в собственности. Мет.-пласт. окна, крыша -металлочерепица. Объект расположен в пригороде Ростова-на-Дону (3 км до въезда в город), в перспективном, интенсивно развивающемся районе. Удобные подъездные пути, живописное место, рядом пруды. Возможен торг.

Читать полностью

    Для того, чтобы купить 2-этажный коттедж по адресу: Ленинаван, Суворова, позвоните по телефону +7 (961) 300-01-02. Торопитесь! Объявление №504994152 о продаже двухэтажного коттеджа опубликовано 23 октября 2025.

    Позвонить Написать
    10 300 000 Р131 700 $ или 113 400
    Дарбинян Норайр
    PRO
    +7 (961) 300-01-02
    Профессионал AFY.ru с 2011 г.
    Начать чат с агентом
    Похожие предложения в Ленинаване
    Дом в Ростовская область, Мясниковский район, Краснокрымское с/пос, ... - Фото 1
    Дом в Ростовская область, Мясниковский район, Краснокрымское с/пос, ... - Фото 2
    1 этаж, общая площадь 105м², участок 3 сотки

    Продается великолепный дом от надежного застройщика с возможностью ипотеки всего от 2,75 Этот кирпичный дом — идеальное сочетание качества и комфорта. Внутри вас ждет теплый пол, который обеспечит уют в любое время года. Центральное водоснабжение и...
    • 1 эт.
    • 105 м²
    • 3 сот.
    10 500 000 Р
    Агент
    +7 (989) Показать номер
    Посмотреть контакты
    Коттедж в Ростовская область, Мясниковский район, Краснокрымское ... - Фото 1
    Коттедж в Ростовская область, Мясниковский район, Краснокрымское ... - Фото 2
    1 этаж, общая площадь 150м², участок 7 соток

    6 ИПОТЕКА 50000 ПОДАРОК - СЕРТИФИКАТ магазина Hoff Вы мечтаете о собственном доме ? Устали от суеты и шума Мегаполиса ? Представляю Вашему вниманию шикарный вариант дом в экологически чистом районе. Рядом вся инфраструктура школа, садик, два...
    • 1 эт.
    • 150 м²
    • 7 сот.
    9 999 000 Р
    Агент
    +7 (988) Показать номер
    Посмотреть контакты
    Дом в Ростовская область, Мясниковский район, Краснокрымское с/пос, ... - Фото 1
    Дом в Ростовская область, Мясниковский район, Краснокрымское с/пос, ... - Фото 2
    2 этажа, общая площадь 109м², участок 3 сотки

    Продается реальный дом в два этажа с современной планировкой и оригинальным дизайном общей площадью 109 м2 на участке 3 сотки земли, в перспективном развивающемся районе, рядом есть вся необходимая инфраструктура для проживания . Рядом Суворовский жилой...
    • 2 эт.
    • 109 м²
    • 3 сот.
    9 499 000 Р
    Агент
    +7 (988) Показать номер
    Посмотреть контакты
    Дом в Ростовская область, Мясниковский район, Краснокрымское с/пос, ... - Фото 1
    Дом в Ростовская область, Мясниковский район, Краснокрымское с/пос, ... - Фото 2
    1 этаж, общая площадь 95м², участок 3 сотки

    Арт.При звонке, просьба указать номер объекта.Продаётся просторный, уютный отдельно стоящий кирпичный дом, площадью 95м.кв. на отдельно расположенном участке , площадью 3,26 сотки в х.Ленинаван Мясниковского района Ростовской области.Улица широкая, светлая,...
    • 1 эт.
    • 95 м²
    • 3 сот.
    10 200 000 Р
    Агент
    +7 (989) Показать номер
    Посмотреть контакты
    Дом в Ростовская область, Мясниковский район, Краснокрымское с/пос, ... - Фото 1
    Дом в Ростовская область, Мясниковский район, Краснокрымское с/пос, ... - Фото 2
    1 этаж, общая площадь 135м², участок 5 соток

    Продаётся просторный дом площадью 135 кв.м.ай для современной семьи Ощутите роскошь жизни в этом просторном доме с 3 спальнями и большой гостиной с столовой, где каждый уголок дышит комфортом 2 санузла для удобства всех домочадцев, 2 сливные ямы для...
    • 1 эт.
    • 135 м²
    • 5 сот.
    9 200 000 Р
    Агент
    +7 (919) Показать номер
    Посмотреть контакты

    Не нашли подходящего объявления?

    Оставьте заявку, и наши риэлторы подберут купить дом в районе Ленинавана

    (0)