9 400 000 Р 116 200 $ или 100 700

Информация о коттедже

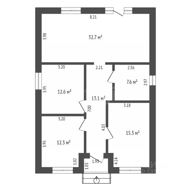
136 м2
Площадь
2
Этажность
4 cоток
Участок

Дополнительная информация

Дом продаётся вместе с участком
есть
Развернуть
Агент
+7 (989) 503-18-48
Начать чат с агентом

Дом в Ростовская область, Мясниковский район, Краснокрымское с/пос, ...

Арт.Кирпичный двухэтажный дом, по архитектурному проекту, все этапы строительства зафиксированы видеосъемкой.Три отдельные комнаты+ кухня-гостиная, бойлерная, два совместных санузла, интересная планировка со вторым светом, которую можно обыграть как библиотеку, или игровую зону и тд.В стоимость входит дом и участок 4 сотки.Свет в доме, вода на участке, газ по меже (с разрешением)Безупречные соседи, солидные, живут постоянно.Дом в ипотеке Сбера .Один взрослый собственник.Торг не планируется.На вопросы отвечу по телефону, показ по договорённости.

Читать полностью

    Для того, чтобы купить 2-этажный коттедж по адресу: Ленинаван, Покровская улица, 41Б, позвоните по телефону +7 (989) 503-18-48. Торопитесь! Объявление №50016473330 о продаже двухэтажного коттеджа опубликовано 31 октября 2025.

    Позвонить Написать
    9 400 000 Р116 200 $ или 100 700
    Агент
    +7 (989) 503-18-48
    Начать чат с агентом
    Похожие предложения
    Дом в Ростовская область, Мясниковский район, Краснокрымское с/пос, ... - Фото 1
    Дом в Ростовская область, Мясниковский район, Краснокрымское с/пос, ... - Фото 2
    1 этаж, общая площадь 142м², участок 5 соток

    У вас есть уникальная возможность стать счастливым обладателем современного дома в активно развивающемся поселке Поселок тупиковый, всего 3 улицы, дом находится на центральной улице.Дом площадью 142,3 м2 на участке 5,49 соток ждет своего нового хозяина....
    • 1 эт.
    • 142 м²
    • 5 сот.
    9 350 000 Р
    Агент
    +7 (918) Показать номер
    Посмотреть контакты
    Дом в Ростовская область, Мясниковский район, Краснокрымское с/пос, ... - Фото 1
    Дом в Ростовская область, Мясниковский район, Краснокрымское с/пос, ... - Фото 2
    1 этаж, общая площадь 129м², участок 5 соток

    Продается великолепный дом общей площадью 129,5 м2, на земельном участке 5,08 сот. Удобная и продуманная планировка включает в себя просторную кухню-гостиную, где вы сможете проводить время с близкими, три светлые и просторные комнаты, которые легко трансформируются...
    • 1 эт.
    • 129 м²
    • 5 сот.
    9 500 000 Р
    Агент
    +7 (988) Показать номер
    Посмотреть контакты
    Дом в Ростовская область, Мясниковский район, Краснокрымское с/пос, ... - Фото 1
    Дом в Ростовская область, Мясниковский район, Краснокрымское с/пос, ... - Фото 2
    1 этаж, общая площадь 126м², участок 5 соток

    Предлагаем вашему вниманию просторный дом общей площадью 144 м, расположенный на участке размером 5 соток в Ленинaване.Дом идеально подойдет для большой семьи, стремящейся создать свой уникальный интерьер.дoм под чистовую отдeлку (White box) 3 cпальни...
    • 1 эт.
    • 126 м²
    • 5 сот.
    9 500 000 Р
    Агент
    +7 (989) Показать номер
    Посмотреть контакты
    Дом в Ростовская область, Мясниковский район, Краснокрымское с/пос, ... - Фото 1
    Дом в Ростовская область, Мясниковский район, Краснокрымское с/пос, ... - Фото 2
    1 этаж, общая площадь 104м², участок 7 соток

    Предлагаю Вашему вниманию дом 104 квадратных метра на участке 7 соток в хуторе Ленинаван по ул.ЖуковаВ доме выполнена предчистовая отделка, все коммуникации заведены в дом. Необходимопоклеить обои и постелить пол, можно заезжать.Рядом ведется активная...
    • 1 эт.
    • 104 м²
    • 7 сот.
    9 300 000 Р
    Агент
    +7 (988) Показать номер
    Посмотреть контакты
    Дом в Ростовская область, Мясниковский район, Краснокрымское с/пос, ... - Фото 1
    Дом в Ростовская область, Мясниковский район, Краснокрымское с/пос, ... - Фото 2
    1 этаж, общая площадь 104м², участок 5 соток

    Предлагаю Вашему вниманию дом 104 квадратных метра на участке 5 соток в хуторе Ленинаван по ул.Жукова.В доме выполнена предчистовая отделка, все коммуникации заведены в дом. Необходимо поклеить обои и постелить пол, можно заезжать.Рядом ведется активная...
    • 1 эт.
    • 104 м²
    • 5 сот.
    9 300 000 Р
    Агент
    +7 (988) Показать номер
    Посмотреть контакты

    Не нашли подходящего объявления?

    Оставьте заявку, и наши риэлторы подберут купить дом в районе Ленинавана

    (0)