7 800 000 Р 98 150 $ или 84 560

Информация о коттедже

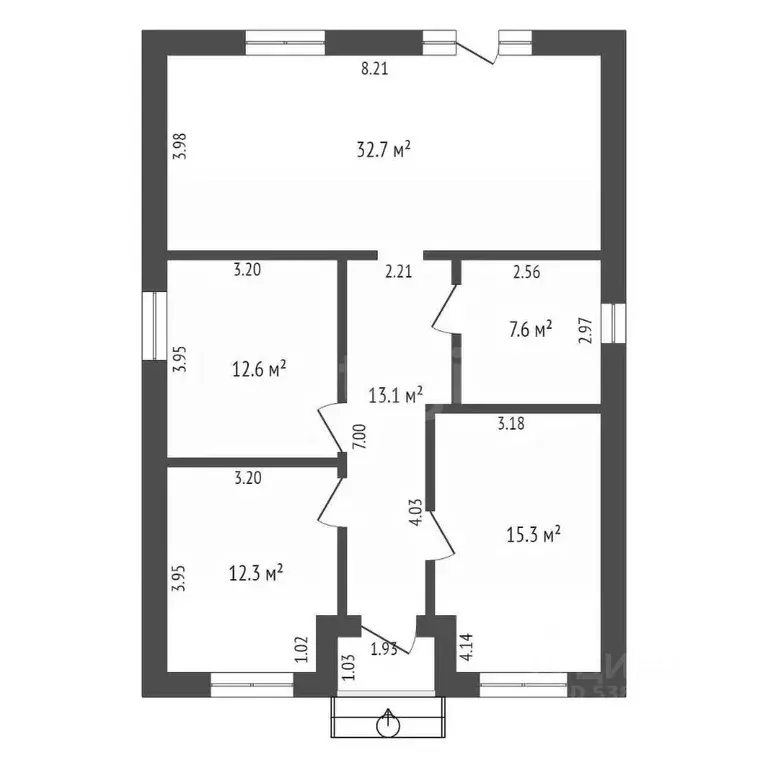
107 м2
Площадь
1
Этажность
3 cоток
Участок

Дополнительная информация

Дом продаётся вместе с участком
есть
Развернуть
Агент
+7 (989) 500-94-53
Начать чат с агентом

Дом в Ростовская область, Мясниковский район, Краснокрымское с/пос, ...

Арт.Продается дом площадью 107 кв. м на участке в 3,5соток, предлагаемый от индивидуального предпринимателя под чистовую отделку. Этот дом идеально подходит для создания комфортного жилья.В доме предусмотрены все необходимые коммуникации, включая скважину, а также установлен котел и теплый пол, что гарантирует уют в любое время года. Переливная яма обеспечивает удобство в эксплуатации.Дом расположен на закрытой территории в ДК Звездный , что обеспечивает безопасность и спокойствие для жителей. Не упустите возможность стать владельцем этого замечательного дома Комиссия оплачивается отдельно.

Читать полностью

    Для того, чтобы купить 1-этажный коттедж по адресу: Ленинаван, позвоните по телефону +7 (989) 500-94-53. Торопитесь! Объявление №50016325927 о продаже одноэтажного коттеджа опубликовано 2 дня назад.

    Позвонить Написать
    7 800 000 Р98 150 $ или 84 560
    Агент
    +7 (989) 500-94-53
    Начать чат с агентом
    Похожие предложения в Ленинаване
    Дом в Ростовская область, Мясниковский район, Краснокрымское с/пос, ... - Фото 1
    Дом в Ростовская область, Мясниковский район, Краснокрымское с/пос, ... - Фото 2
    1 этаж, общая площадь 102м², участок 3 сотки

    Арт.Продается шикарный дом х.Ленинаван.102 кв.м на 3.5 сотках земли.Дом в котором хочется жить и он полностью готов исполнения вашей дизайнерской фантазии.Очень грамотная и удобная планировка.В 3 спальни огромная кухня-гостиная,гордеробная и сан.узел.В...
    • 1 эт.
    • 102 м²
    • 3 сот.
    7 700 000 Р
    Агент
    +7 (989) Показать номер
    Посмотреть контакты
    Дом в Ростовская область, Мясниковский район, Краснокрымское с/пос, ... - Фото 1
    Дом в Ростовская область, Мясниковский район, Краснокрымское с/пос, ... - Фото 2
    2 этажа, общая площадь 118м², участок 3 сотки

    Арт.Продается дом от застройщика в Лениванове площадью 118 кв. м, расположенный на участке в 3 сотки. Этот современный дом предлагает комфортное жилье с продуманной планировкой.На первом этаже находится кухня с возможностью обустройства спальни, а также...
    • 2 эт.
    • 118 м²
    • 3 сот.
    7 900 000 Р
    Агент
    +7 (989) Показать номер
    Посмотреть контакты
    Дом в Ростовская область, Мясниковский район, Краснокрымское с/пос, ... - Фото 1
    Дом в Ростовская область, Мясниковский район, Краснокрымское с/пос, ... - Фото 2
    1 этаж, общая площадь 104м², участок 5 соток

    Предлагаю Вашему вниманию дом 104 квадратных метра на участке 5 соток в хуторе Ленинаван по ул.ЖуковаВ доме выполнена предчистовая отделка, все коммуникации заведены в дом. Необходимо поклеить обои и постелить пол, можно заезжать.Рядом ведется активная...
    • 1 эт.
    • 104 м²
    • 5 сот.
    7 700 000 Р
    Агент
    +7 (988) Показать номер
    Посмотреть контакты
    Дом в Ростовская область, Мясниковский район, Краснокрымское с/пос, ... - Фото 1
    Дом в Ростовская область, Мясниковский район, Краснокрымское с/пос, ... - Фото 2
    1 этаж, общая площадь 104м², участок 7 соток

    Предлагаю Вашему вниманию дом 104 квадратных метра на участке 7 соток в хуторе Ленинаван по ул.Жукова.В доме выполнена предчистовая отделка, все коммуникации заведены в дом. Необходимо поклеить обои и постелить пол, можно заезжать.Рядом ведется активная...
    • 1 эт.
    • 104 м²
    • 7 сот.
    7 700 000 Р
    Агент
    +7 (988) Показать номер
    Посмотреть контакты
    Дом в Ростовская область, Мясниковский район, Краснокрымское с/пос, ... - Фото 1
    Дом в Ростовская область, Мясниковский район, Краснокрымское с/пос, ... - Фото 2
    1 этаж, общая площадь 124м², участок 6 соток

    Продаётся дом 124 м — просторный, светлый, с функциональной планировкой и полной подготовкой к чистовой отделке. Три отдельные спальни — идеально подойдут для семьи с детьми, кабинета или гостевой комнаты. Объединённая кухня-гостиная — просторное и светлое...
    • 1 эт.
    • 124 м²
    • 6 сот.
    7 890 000 Р
    Агент
    +7 (918) Показать номер
    Посмотреть контакты

    Не нашли подходящего объявления?

    Оставьте заявку, и наши риэлторы подберут купить дом в районе Ленинавана

    (0)