Реализация объекта недвижимости приостановлена

Информация о квартире

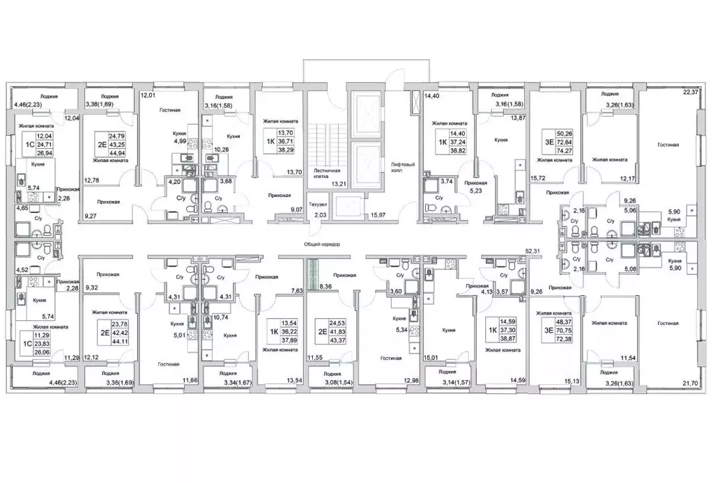
37.0 м2
Площадь
13.0 м2
Жилая
10.0 м2
Кухня
1
Комната
2
Этаж
22
Этажность

Дополнительная информация

Тип дома
монолит
Развернуть

1-к кв. Ростовская область, Батайск (37.89 м)

Продаётся 1-комнатная квартира в строящемся доме (Дом 10 Секция 1), срок сдачи: II-кв. 2026, общей площадью 37.89 кв.м., на 2 этаже. Продаётся квартира в ЖК Булгаков в 22-этажном доме от ЗAСТРОЙЩИКA.Предчистовая отделкаЭргономичная планировкаПросторная застекленная лоджия и увеличенные окнаСтильная входная группа и скоростные лифтыСобственная управляющая компания.Во дворе - свой благоустроенный парк на 35 000 м2 с современными детскими и спортивными площадками, утопающими в зелени. На территории проектируется муниципальная школа на 1340 мест и многоуровневый паркинг.Сейчас - самый широкий выбор всех планировок по самым низким ценам от застройщика. Без комиссий и переплат, но с бесплатным и полным сопровождением сделки.Узнайте подробнее и получите самые выгодные условия с бесплатным оформлением и полным сопровождением сделки.

Читать полностью

    Реализация объекта недвижимости приостановлена

    Не нашли подходящего объявления?

    Оставьте заявку, и наши риэлторы подберут квартиру в новостройке в районе Батайска

    (0)