2 999 999 Р 37 810 $ или 32 280

Информация о квартире

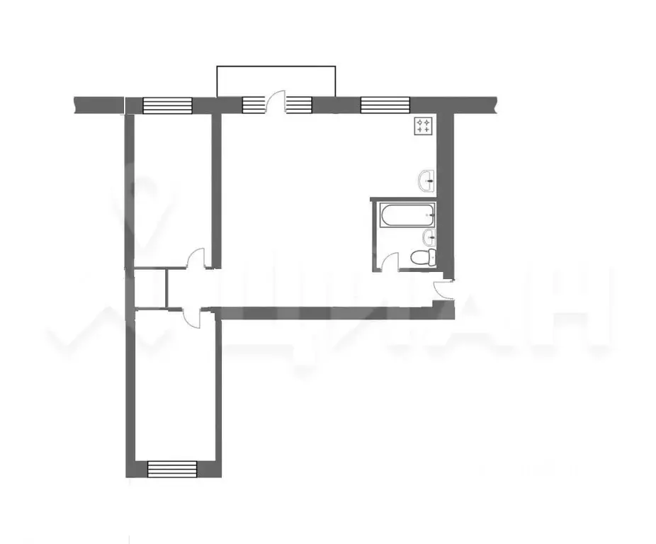
47 м2
Площадь
10 м2
Жилая
25 м2
Кухня
2
Комнаты
1
Этаж
2
Этажность

Дополнительная информация

Тип дома
кирпичный
Развернуть
Агент
+7 (989) 523-41-85
Начать чат с агентом

2-к кв. Ростовская область, Азовский район, с. Самарское ул. Зеленый ...

Арт.Наше агентство недвижимости Дон-МТ с радостью представляем вам удивительное предложение —идеальную квартиру Продаю Е2-х комнатную квартиру площадью 47 кв. м на1 этаже 2 этажного кирпичного дома. 2-ка с прекрасным видом на природу.Квартира расположен в спокойном районе с хорошо развитой инфраструктурой. Также в шаговой доступности расположено Голубое озеро . Квартира без ремонта ,но под чистовую отделку - что дает отличную возможность создать интерьер по своему вкусу и потребностям. Планировка предусматривает совмещенный санузел и просторную кухню-гостиную, где можно разместить все необходимое для комфортного проживания. Так же несколько из преимуществ : наличие индивидуальной скважины для воды, индивидуального септика и индивидуального отопления , что дает нам очень низкие коммунальные платежи В подвальном помещении есть своя отдельная кладовая 12м2.Возможна ипотека. Номер лота:Код агента: 218С уважением Ваш агент Дмитрий

Читать полностью

    Для того, чтобы купить двухкомнатную квартиру по адресу: Самарское, ул. Зеленый Гай, 21, позвоните по телефону +7 (989) 523-41-85. Торопитесь! Объявление №30092325885 о продаже двухкомнатной квартиры опубликовано 09 декабря 2025.

    Позвонить Написать
    2 999 999 Р37 810 $ или 32 280
    Агент
    +7 (989) 523-41-85
    Начать чат с агентом
    Похожие предложения
    1-комнатная квартира: Кулешовка, Пролетарская улица, 33 (30 м) - Фото 1
    1-комнатная квартира: Кулешовка, Пролетарская улица, 33 (30 м) - Фото 2
    1-комнатная квартира, общая площадь 30м², жилая 18м², кухня 5м²

    Арт.при звонке укажите номер idпродается чистая, уютная, с современным ремонтом. Новая сантехника из Леруа, новая электрика, коридор полы - кухня плитка. комната полы ламинат, окна металопластик . Остается вся мебель, кухонный гарнитур, кондиционер....
    • 30 м²
    • 1-ком
    • 1/9 эт.
    3 000 000 Р
    Агент
    +7 (961) Показать номер
    Посмотреть контакты
    1-к кв. Ростовская область, Ростов-на-Дону Таганрогская ул., 143 (30.0 ... - Фото 1
    1-к кв. Ростовская область, Ростов-на-Дону Таганрогская ул., 143 (30.0 ... - Фото 2
    1-комнатная квартира, общая площадь 30м², жилая 17м², кухня 6м²

    Продается уютная 1-я квартира, площадью 30/17/6 м.кв., 3 этаж 5 этажного ул. Таганрогская.Комната очень светлая и просторная, на полу в квартире линолеум, совмещенный сан узел-ванна, в санузле и на кухне плитка.Состояние квартиры хорошее, жилое. Есть...
    • 30 м²
    • 1-ком
    • 3/5 эт.
    • кирпичный
    3 090 000 Р
    Агент
    +7 (988) Показать номер
    Посмотреть контакты
    3-к кв. Ростовская область, Волгодонск Морская ул., 92 (58.2 м) - Фото 1
    3-к кв. Ростовская область, Волгодонск Морская ул., 92 (58.2 м) - Фото 2
    3-комнатная квартира, общая площадь 58м², жилая 42м², кухня 6м²

    Арт.Продаётся 3к квартира в центре старого города.Площадь 58 кв м, жилая 42 кв м, на 5 этаже кирпичного дома.Все находится в пешей доступности - магазины, институт, вокзал, остановка, школа, садик.Квартира в кирпичном доме обеспечит вам хорошую тепло-...
    • 58 м²
    • 3-ком
    • 5/5 эт.
    • кирпичный
    3 000 000 Р
    Агент
    +7 (988) Показать номер
    Посмотреть контакты
    3-к кв. Ростовская область, Волгодонск Морская ул., 82 (57.4 м) - Фото 1
    3-к кв. Ростовская область, Волгодонск Морская ул., 82 (57.4 м) - Фото 2
    3-комнатная квартира, общая площадь 57м², жилая 40м², кухня 6м²

    Арт.Продается трехкомнатная квартира - бабочка по улице Морской в районе вокзала. Рядом находится торговый центр Гиалс , м-н Магнит, в 100м. - детский сад Космос, в шаговой доступности рынок Машенька , парк Победы, Почта и институт. В сентябре 2025г....
    • 57 м²
    • 3-ком
    • 5/5 эт.
    • кирпичный
    3 100 000 Р
    Агент
    +7 (988) Показать номер
    Посмотреть контакты
    1-к кв. Ростовская область, Волгодонск Пионерская ул. (33.9 м) - Фото 1
    1-к кв. Ростовская область, Волгодонск Пионерская ул. (33.9 м) - Фото 2
    1-комнатная квартира, общая площадь 33м², жилая 18м², кухня 8м²

    Арт.Продается однокомнатная квартира, состояние хорошее, после ремонта, пластиковые окна.
    • 33 м²
    • 1-ком
    • 8/9 эт.
    • панельный
    3 000 000 Р
    Агент
    +7 (989) Показать номер
    Посмотреть контакты

    Не нашли подходящего объявления?

    Оставьте заявку, и наши риэлторы подберут квартиру в районе Самарского

    (0)