758 000 Р /в месяц 9 370 $ или 8 120

Информация об помещении

1190 м2
Площадь

Состояние и оснащение

Общая площадь складского комплекса, м2
1190
Развернуть
Агент
Минченко Надежда Анатольевна
+7 (918) 555-04-03
Начать чат с агентом

Аренда склада, Аксайский район, Кварцевая

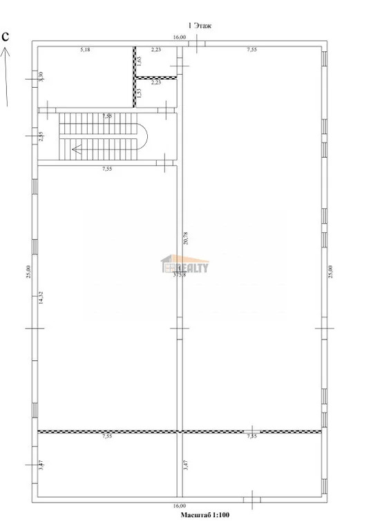
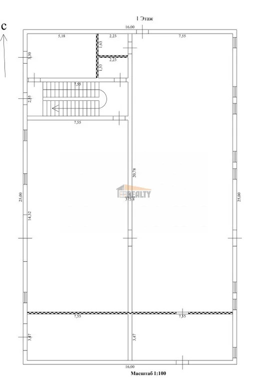
Сдается в аренду торговый склад общей площадью 1190 м2. Торгово-складское здание в два этажа. 1 этаж- 590 м2 (473м2 складское, 118м2 торговое, два санузла, котельная, раздевалка, кабинет). Высота потолка 4,5м. Расстояние между стеллажными рядами: 1,8м, 1,6м, 1,8м. 2 этаж -603 м2 (складское помещение). Высота потолка 5,8 м. Нагрузка на пол второго этажа 0,8/м2. Грузоподъемный лифт на 2 этаж, 3,5 тонны. Пол бетонный. Коммуникации: отопление от собственной котельной. Водопровод (скважина), канализация (сливная яма), электроснабжение 15 кВт. Площадь земельного участка 1600м2, застроенная территория 625м2, свободная площадка 975м2. Открытая площадка для хранения. Отдельная охраняемая огороженная территория. Вход с фасада. Наличие зоны разгрузки/погрузки. В этом же помещении на 1 этаже торговый магазин. Административно-бытовое и технические помещения (санузлы). Здание расположено на промышленной территории. Соседство: производство и склады. Развитая инфраструктура, сложившееся торговое окружение. Рядом элитные коттеджные посёлки: Камышеваха, Янтарный, Изумрудный, Олимпийский, Водопадный. Удобное транспортное расположение. Прилегающая территория - парковка на 10 м/мест. Возможность размещения наружной рекламы.

Цена за 1 м2 -/мес. Открытая площадка для хранения 1м2 –/мес.

Цена здания – 650 тыс.руб, цена открытой площадки – Итого: (без НДС)

Коммунальные услуги оплачиваются отдельно.

Читать полностью

    Для того, чтобы снять склад площадью 1190 кв. метров по адресу: Кварцевая, 2 а, позвоните по телефону +7 (918) 555-04-03. Торопитесь! Объявление №901085732 об аренде склада площадью 1190 кв. метров опубликовано Вчера.

    Позвонить Написать
    758 000 Р /в месяц9 370 $ или 8 120
    Агент
    Минченко Надежда Анатольевна
    +7 (918) 555-04-03
    Начать чат с агентом
    Похожие предложения
    Аренда склада, Поярково, Солнечногорский район, Лесная Цесарка ул. - Фото 1
    Аренда склада, Поярково, Солнечногорский район, Лесная Цесарка ул. - Фото 2
    Аренда склада, Поярково, Солнечногорский район, Лесная Цесарка ул. - Фото 3
    Аренда склада, Поярково, Солнечногорский район, Лесная Цесарка ул. - Фото 4
    Аренда склада, Поярково, Солнечногорский район, Лесная Цесарка ул. - Фото 5
    Аренда склада, Поярково, Солнечногорский район, Лесная Цесарка ул. - Фото 6
    Аренда склада, Поярково, Солнечногорский район, Лесная Цесарка ул. - Фото 7
    общая площадь 1029м², полезная площадь 1029м²

    Арт. Сдается в аренду производственно-складское, трехэтажное здание, общей площадью 1029 кв.м. Состоит из двух этажей и мансарды (3 этаж). Высота потолков на этажах - 3,2м, в мансарде- 3,45м (в коньке). Здание построено из бетонных блоков и обшито окрашенным...
    • 1 029 м²
    • 1-й эт.
    650 000 Р /в месяц
    PRO
    +7 (495) Показать номер
    Агентство
    ИП Захарова
    Посмотреть контакты
    Склад в Вологодская область, Череповец просп. Луначарского, 55 (7 м) - Фото 1
    Склад в Вологодская область, Череповец просп. Луначарского, 55 (7 м) - Фото 2
    Сдам кладовое помещение с отдельным входом на цокольном этаже. круглосуточный вход и подъезд. Закрытая территория. Плюсовая температура круглый год. Площадь 7м2. Сделано обеспыливание помещений, уложен линолеум, стены окрашены в белый цвет. Коммунальные...
    • -1/15 эт.
    7 500 Р
    Агент
    +7 (981) Показать номер
    Посмотреть контакты

    Не нашли подходящего объявления?

    Оставьте заявку, и наши риэлторы подберут склад в районе Аксайского района

    (0)