8 500 000 Р 105 000 $ или 90 350

Информация о коттедже

120 м2
Площадь
1
Этажность
5 cоток
Участок

Дополнительная информация

Дом продаётся вместе с участком
есть
Развернуть
Агент
+7 (988) 250-80-56
Начать чат с агентом

Дом в Ростовская область, Аксайский район, Щепкинское с/пос, пос. ...

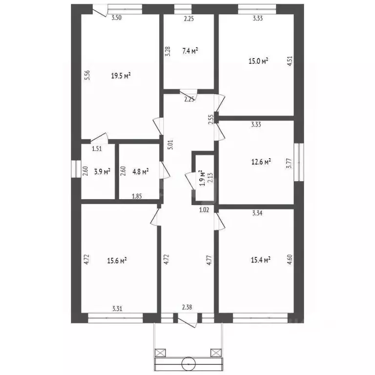
Продается уютный дом вашей мечты Предлагаем вам уникальную возможность стать владельцем просторного дома площадью 120 м на земельном участке 5,28 сотки. Этот дом идеально подходит для комфортной жизни и создания тепла домашнего уюта Основные характеристики:* Площадь: 120 м* Земельный участок: 5,28 соток* Отопление: Газовое* Канализация: Септик* Источник воды: Скважина Преимущества:* Предчистовая отделка. Стены готовы к поклейке обоев.* Электрика разведена: Вы сможете быстро и легко подключить все необходимые устройства.* Кирпичная облицовка Комнаты:* Четыре светлых комнаты по 15 м и одна уютная комната 12,6 м — идеальные пространства для отдыха и работы.* Просторная кухня-гостиная 19,5 м с выходом на веранду.* Два санузла обеспечат вам комфорт и приватность.* Отдельная котельная для вашего удобства. Подъезд к дому: Удобный подъезд с щебеночным покрытием.Не упустите шанс стать владельцем этого замечательного дома Звоните прямо сейчас, чтобы записаться на просмотр и узнать больше о вашем будущем жилье Дополнительно оплачивается комиссия с покупателя. Код пользователя: 118934Номер в базе: 4441331

Читать полностью

    Для того, чтобы купить 1-этажный коттедж по адресу: Темерницкий, Кристальная улица, позвоните по телефону +7 (988) 250-80-56. Торопитесь! Объявление №50015405206 о продаже одноэтажного коттеджа опубликовано 18 октября 2025.

    Позвонить Написать
    8 500 000 Р105 000 $ или 90 350
    Агент
    +7 (988) 250-80-56
    Начать чат с агентом
    Похожие предложения в Темерницком
    Дом в Ростовская область, Аксайский район, Щепкинское с/пос, пос. ... - Фото 1
    Дом в Ростовская область, Аксайский район, Щепкинское с/пос, пос. ... - Фото 2
    1 этаж, общая площадь 115м², участок 6 соток

    Арт.При звонке просьба указывать номер объектаПродажа дома в посёлке Темерницкий Просторный и современный дом площадью 115 м на участке площадью 6 соток, в уютном и благоустроенном районе по адресу: ул. Кристальная, Темерницкий, Ростовская область.Преимущества...
    • 1 эт.
    • 115 м²
    • 6 сот.
    8 600 000 Р
    Агент
    +7 (989) Показать номер
    Посмотреть контакты
    Дом в Ростовская область, Аксайский район, Щепкинское с/пос, пос. ... - Фото 1
    Дом в Ростовская область, Аксайский район, Щепкинское с/пос, пос. ... - Фото 2
    1 этаж, общая площадь 100м², участок 5 соток

    В продаже жилой дом 100 кв.м на участке 5 соток в коттеджном поселке Ореховая роща . Дом со всеми коммуникациями в предчистовой отделке. Три раздельные комнаты, большая кухня-гостиная с выходом на задний двор., просторный санузел, гардеробная, котельная....
    • 1 эт.
    • 100 м²
    • 5 сот.
    8 500 000 Р
    Агент
    +7 (919) Показать номер
    Посмотреть контакты
    Дом в Ростовская область, Аксайский район, Щепкинское с/пос, пос. ... - Фото 1
    Дом в Ростовская область, Аксайский район, Щепкинское с/пос, пос. ... - Фото 2
    1 этаж, общая площадь 123м², участок 5 соток

    УНИКАЛЬНОЕ ПРЕДЛОЖЕНИЕ ДЛЯ ВАШЕЙ СЕМЬИ Ищете идеальный дом для комфортной жизни? Мы рады представить вам великолепный дом в новом, экологически чистом районе п. Темерницкий Этот дом — настоящая находка для тех, кто ценит качество и уют. Площадь 123...
    • 1 эт.
    • 123 м²
    • 5 сот.
    8 500 000 Р
    Агент
    +7 (988) Показать номер
    Посмотреть контакты
    Дом в Ростовская область, Аксайский район, Щепкинское с/пос, пос. ... - Фото 1
    Дом в Ростовская область, Аксайский район, Щепкинское с/пос, пос. ... - Фото 2
    1 этаж, общая площадь 120м², участок 5 соток

    УНИКАЛЬНОЕ ПРЕДЛОЖЕНИЕ ДЛЯ ВАШЕЙ СЕМЬИ Ищете идеальный дом для комфортной жизни? Мы рады представить вам великолепный дом в новом, экологически чистом районе п. Темерницкий Этот дом — настоящая находка для тех, кто ценит качество и уют. Площадь 123...
    • 1 эт.
    • 120 м²
    • 5 сот.
    8 500 000 Р
    Агент
    +7 (988) Показать номер
    Посмотреть контакты
    Дом в Ростовская область, Аксайский район, Щепкинское с/пос, пос. ... - Фото 1
    Дом в Ростовская область, Аксайский район, Щепкинское с/пос, пос. ... - Фото 2
    1 этаж, общая площадь 123м², участок 5 соток

    УНИКАЛЬНОЕ ПРЕДЛОЖЕНИЕ ДЛЯ ВАШЕЙ СЕМЬИ Ищете идеальный дом для комфортной жизни? Мы рады представить вам великолепный дом в новом, экологически чистом районе п. Темерницкий Этот дом — настоящая находка для тех, кто ценит качество и уют. Площадь 120...
    • 1 эт.
    • 123 м²
    • 5 сот.
    8 500 000 Р
    Агент
    +7 (988) Показать номер
    Посмотреть контакты

    Не нашли подходящего объявления?

    Оставьте заявку, и наши риэлторы подберут купить дом в районе Темерницкого

    (0)