7 500 000 Р 92 160 $ или 79 990

Информация о коттедже

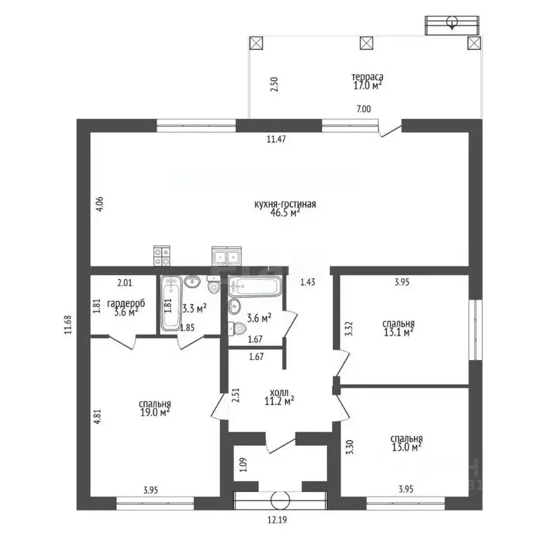
130 м2
Площадь
1
Этажность
5 cоток
Участок

Дополнительная информация

Дом продаётся вместе с участком
есть
Развернуть
Агент
+7 (918) 571-72-98
Начать чат с агентом

Дом в Ростовская область, Аксайский район, Щепкинское с/пос, пос. ...

Продается великолепный дом в живописном коттеджном поселке Щепкин, идеально подходящий для комфортной жизни и отдыха Этот уютный дом общей площадью 131 кв.м. предлагает все условия для вашей семьи: три просторные спальни и светлая кухня, где вы сможете создавать кулинарные шедевры и проводить время с близкими.Коммуникации в доме продуманы до мелочей: водоснабжение осуществляется из собственной скважины, а отопление газовое, что обеспечит вам тепло и комфорт в любое время года. Канализация представлена выгребной ямой, а электроснабжение уже заведено в дом. Дом находится в предчистовой отделке, что дает вам возможность реализовать свои дизайнерские идеи и создать уникальное пространство. У вас уже есть стяжка пола, утепленный потолок и стены, готовые к поклейке обоев. Для вашего удобства предусмотрены два санузла: один отдельный и второй совмещенный с ванной.Земельный участок площадью 580 кв.м. (5,8 соток) обеспечит вам достаточно пространства для отдыха на свежем воздухе, а подъездные пути засыпаны щебнем, что гарантирует комфортный доступ к дому (всего 800 м до асфальта).В шаговой доступности находится остановка общественного транспорта, а школа расположена всего в 10 минутах езды. Также в поселке имеется Фельдшерско-акушерский пункт, что делает его идеальным местом для жизни с детьми.Не упустите возможность приобрести этот замечательный дом в семейную ипотеку под 6 Мы поможем вам с одобрением и оформлением документов. Звоните и записывайтесь на просмотр в любое удобное для вас время. Этот дом может стать вашим новым уютным гнездышком, где сбудутся все ваши мечты Дополнительно оплачивается комиссия с покупателя. Код пользователя: 162072Номер в базе: 3889231

Читать полностью

    Для того, чтобы купить 1-этажный коттедж по адресу: Щепкин, ул. Западная, позвоните по телефону +7 (918) 571-72-98. Торопитесь! Объявление №50016532467 о продаже одноэтажного коттеджа опубликовано 2 дня назад.

    Позвонить Написать
    7 500 000 Р92 160 $ или 79 990
    Агент
    +7 (918) 571-72-98
    Начать чат с агентом
    Похожие предложения
    Дом в Ростовская область, Аксайский район, Щепкинское с/пос, пос. ... - Фото 1
    Дом в Ростовская область, Аксайский район, Щепкинское с/пос, пос. ... - Фото 2
    общая площадь 130м², участок 6 соток

    Дом 2024 г.общая площадь застройки 130в.м, участок 5 сот. Дом построен из качественных материалов ,имеет оптимальную планировку. Большая кухня-гостиная позволяет проводить время всей сeмьёй. Tpи просторных спальни, сделают отдых комфортным не только для...
    • 130 м²
    • 6 сот.
    7 499 000 Р
    Агент
    +7 (919) Показать номер
    Посмотреть контакты
    Дом в Ростовская область, Аксайский район, Щепкинское с/пос, пос. ... - Фото 1
    Дом в Ростовская область, Аксайский район, Щепкинское с/пос, пос. ... - Фото 2
    1 этаж, общая площадь 130м², участок 5 соток

    Продается великолепный дом в живописном коттеджном поселке Щепкин, идеально подходящий для комфортной жизни и отдыха Этот уютный дом общей площадью 131 кв.м. предлагает все условия для вашей семьи: три просторные спальни и светлая кухня, где вы сможете...
    • 1 эт.
    • 130 м²
    • 5 сот.
    7 500 000 Р
    Агент
    +7 (988) Показать номер
    Посмотреть контакты
    Дом в Ростовская область, Аксайский район, Щепкинское с/пос, пос. ... - Фото 1
    Дом в Ростовская область, Аксайский район, Щепкинское с/пос, пос. ... - Фото 2
    1 этаж, общая площадь 125м², участок 6 соток

    Продается дом в поселке Щепкин, Аксайского района.Дом 125 кв,м, на участке 6,5 соток.Дом в самом центре поселка, большая кухня-гостиная, 3 спальни, котельная, прачечная, сан.узел. Дом под чистовую отделку, электричество, водоснабжение, газ проведены....
    • 1 эт.
    • 125 м²
    • 6 сот.
    7 400 000 Р
    Агент
    +7 (989) Показать номер
    Посмотреть контакты
    Дом в Ростовская область, Аксайский район, Щепкинское с/пос, пос. ... - Фото 1
    Дом в Ростовская область, Аксайский район, Щепкинское с/пос, пос. ... - Фото 2
    1 этаж, общая площадь 120м², участок 5 соток

    В продаже дом от застройщика, подходит под любой вид ЛЬГОТНОЙ ИПОТЕКИ Этот уютный и современный дом станет настоящим оазисом для вашей семьи. Удобная и продуманная планировка включает в себя просторную кухню-гостиную, где вы сможете проводить время с...
    • 1 эт.
    • 120 м²
    • 5 сот.
    7 550 000 Р
    Агент
    +7 (918) Показать номер
    Посмотреть контакты
    Дом в Ростовская область, Аксайский район, Щепкинское с/пос, пос. ... - Фото 1
    Дом в Ростовская область, Аксайский район, Щепкинское с/пос, пос. ... - Фото 2
    1 этаж, общая площадь 140м², участок 5 соток

    В продаже готовый построенный дом от проверенного застройщика.В дом заведены коммуникации, выполнены работы по монолиту во дворе.Три спальни, кухня столовая со вторым светом, 2 сан/уз и котельная.Возможна продажа в ипотеку.Звоните отвечу на все вопросы...
    • 1 эт.
    • 140 м²
    • 5 сот.
    7 500 000 Р
    Агент
    +7 (989) Показать номер
    Посмотреть контакты

    Не нашли подходящего объявления?

    Оставьте заявку, и наши риэлторы подберут купить дом в районе Щепкина

    (0)