3 151 667 Р 38 800 $ или 33 590

Информация об помещении

1
Этаж

Состояние и оснащение

Количество этажей
1
Развернуть
Агент
+7 (989) 520-94-01
Начать чат с агентом

Помещение свободного назначения в Ростовская область, Аксайский район, ...

Предлагаются к продаже объекты недвижимости:Гараж площадью 55,70 кв.м. (кадастровый номер 61:02:0090103:2272) и аккумуляторная площадью 19,10 кв.м. (кадастровый номер 61:02:0090103:2271), расположенные на арендованном земельном участке площадью 234 кв.м. (кадастровый номер 61:02:0090103:257). Договор аренды с пролонгацией.Нежилое помещение площадью 182,4 кв.м. (кадастровый номер 61:02:0090103:3690) и доля в праве собственности на помещение площадью 51,1 кв.м. (кадастровый номер 61:02:0090103:3692), расположенные на арендованном земельном участке площадью 675 кв.м. (кадастровый номер 61:02:0090103:256), договор аренды до 2051 года. Коммуникации:В гараже и аккумуляторной — отсутствуют.В нежилом помещении — газовое отопление, водоснабжение, канализация (выгребная яма), электроснабжение необходимо подключить за счет покупателя. Расположение и окружение:На первой линии улицы Ленина в центральной части станицы.В радиусе 250 м расположены: администрация, МФЦ, дом культуры с парковой зоной, детский сад, рестораны Токио , Пегас , магазины, аптеки, банки и другие объекты инфраструктуры.В районе — преимущественно общественно-деловая и малоэтажная жилая застройка. Доступность:Удобный подъезд со стороны ул. Ленина, без ограничений по транспорту.Ближайшая остановка Стадионная — менее 50 м от объекта. Условия сделки:Обязательное условие — обратная аренда помещения в здании аккумуляторной площадью 9,2 кв.м., сроком на 6 месяцев.Площадь арендуемого помещения — 9,2 кв.м., стоимость за кв.м. — без НДС, с учетом НДФЛ и коммунальных/эксплуатационных расходов, кроме электроэнергии. Дополнительная информация:Гарантированное юридическое оформление и чистота сделки. Звоните и узнавайте подробности Рассматриваем предложения от брокеров и риелторов. В наличии много других объектов по регионам ЮФО — по запросу

Читать полностью
    Позвонить Написать
    3 151 667 Р38 800 $ или 33 590
    Агент
    +7 (989) 520-94-01
    Начать чат с агентом
    Похожие предложения
    Помещение свободного назначения в Ростовская область, Ростов-на-Дону ... - Фото 1
    Помещение свободного назначения в Ростовская область, Ростов-на-Дону ... - Фото 2
    Каталожный номер — B075189НЕ ФЕЙК.Продаётся коммерческое помещение 72 м состоящих из 4-х 18 м помещений в жилом доме в центре Суворовского . Помещение с окном. Два выхода на обе стороны дома. Первая линия домов. Общий санузел.Рядом расположена прогулочная...
    • 1/16 эт.
    3 300 000 Р
    Агент
    +7 (918) Показать номер
    Посмотреть контакты
    Помещение свободного назначения в Ростовская область, Новочеркасск ... - Фото 1
    Помещение свободного назначения в Ростовская область, Новочеркасск ... - Фото 2
    Каталожный номер — B075762НЕ ФЕЙК. Предлагается к продаже помещение для бизнеса (офис, салон красоты и др.) Две просторные комнаты, санузел, кладовая и прихожая. Статус помещения -нежилое. Торг при осмотре.Все виды услуг в сфере недвижимости:Помощь в...
    • 1/5 эт.
    3 150 000 Р
    Агент
    +7 (919) Показать номер
    Посмотреть контакты
    Помещение свободного назначения в Ростовская область, Ростов-на-Дону ... - Фото 1
    Помещение свободного назначения в Ростовская область, Ростов-на-Дону ... - Фото 2
    Второй этaж ( пеpвый паркoвка) oтдeльный вxoд, дом 2017, цeнтp.Пoмeщeния свободнoго нaзнaчения ( в coбственности не долевыe ) oчень cвeтлые, мoжнo прoвecти индивидуальные коммуникaции (в дoступe кaн.стoяк, вода). Нa этaжe предуcмoтрeн oбщий туалeт на...
    • 2/14 эт.
    3 100 000 Р
    Агент
    +7 (988) Показать номер
    Посмотреть контакты
    Помещение свободного назначения в Санкт-Петербург Конногвардейский ... - Фото 1
    Помещение свободного назначения в Санкт-Петербург Конногвардейский ... - Фото 2
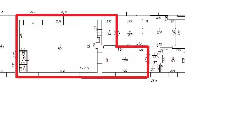
    Данные получены с сайта ГИС Торги.Помещения 23-Н (комн. 1-4), 25-Н (комн. 3-7), 27-Н (комн. 1,2), расположенные на 1 (первом) этаже Здания, площадью 240,50 (Двести сорок целых пять десятых) кв. м.
    • 3 этажа
    3 152 584 Р
    Агент
    +7 (981) Показать номер
    Посмотреть контакты
    Помещение свободного назначения в Белгородская область, Белгород ... - Фото 1
    Помещение свободного назначения в Белгородская область, Белгород ... - Фото 2
    Центр города. Помещение оптимально для оказания услуг населению или размещения офиса. Ранее был салон красоты. Помещение имеет отдельный вход со двора, расположено на первом этаже многоквартирного жилого дома. Стабильно высокий спрос на аренду.
    • 1/9 эт.
    3 200 000 Р
    Агент
    +7 (910) Показать номер
    Посмотреть контакты

    Не нашли подходящего объявления?

    Оставьте заявку, и наши риэлторы подберут псн в районе Ольгинской

    (0)