Реализация объекта недвижимости приостановлена

Информация о квартире

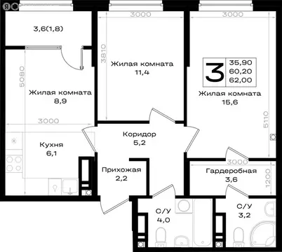
62.0 м2
Площадь
35.0 м2
Жилая
6.0 м2
Кухня
3
Комнаты
7
Этаж
18
Этажность
Развернуть

3-комнатная квартира: Аксай, Новый Аксай (62 м)

Трехкомнатная квартира предлагает продуманное и комфортное пространство: три удобные изолированные комнаты обеспечивают каждому члену семьи личное уютное пространство. Отдельно выделена гардеробная, где с комфортом разместится одежда и аксессуары, освобождая жилые зоны от лишнего хранения. Кухня-ниша органично вписана в общее пространство, не нарушая его целостности, а раздельный санузел добавляет удобства и гигиеничности. Просторные прихожая и коридор обеспечивают легкую циркуляцию и дополнительные возможности для организации порядка. Завершает планировку лоджия — практичное и светлое продолжение интерьера для отдыха, хранения или любимых растений.

Читать полностью

    Реализация объекта недвижимости приостановлена

    Не нашли подходящего объявления?

    Оставьте заявку, и наши риэлторы подберут квартиру в новостройке в районе Аксая

    (0)