Реализация объекта недвижимости приостановлена

Информация о коттедже

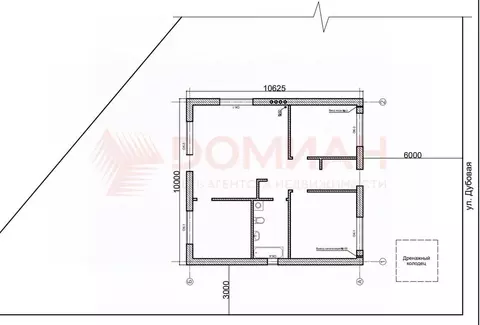
131.0 м2
Площадь
1
Этажность
5.0 cоток
Участок

Дополнительная информация

Дом продаётся вместе с участком
есть
Развернуть

Дом в Аксай, улица Речников (131 м)

В продаже кирпичный дом от застройщика.Качественное строение, есть фото и видео всех скрытых работ.В доме свет, вода и газ.Современная удобная планировка, три спальни и кухня столовая 33 кв.м., котельная/прачечная и 2 сан/уз.Подходит ипотека

Читать полностью

    Реализация объекта недвижимости приостановлена

    Не нашли подходящего объявления?

    Оставьте заявку, и наши риэлторы подберут купить дом в районе Аксая

    (0)